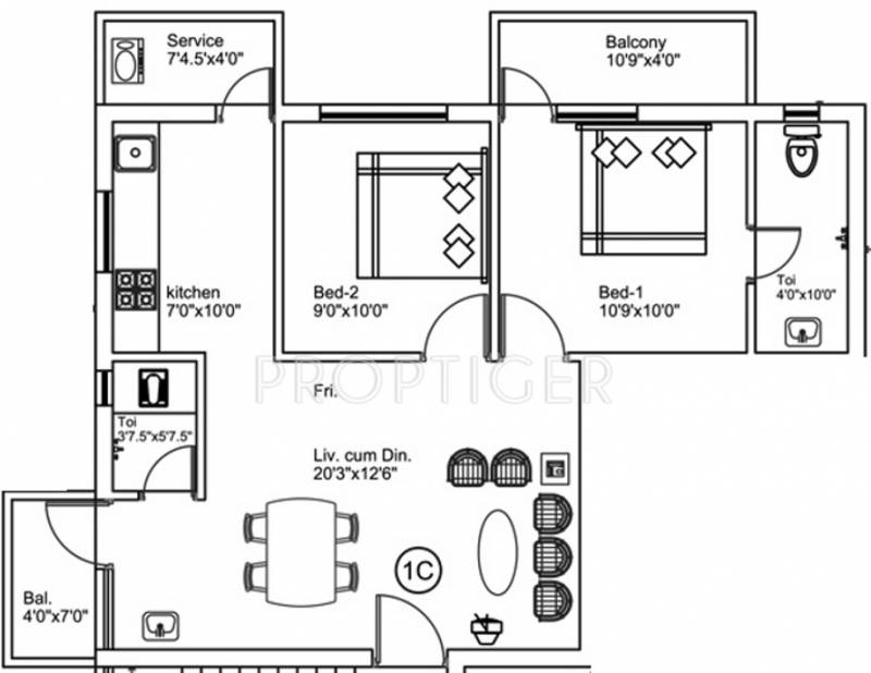
Floor Plan Image of Amman Constructions Sukriti

This floor plan image of Amman Constructions Sukriti consists of 2BHK+2T (908 sq ft) unit with the size of 908 sq ft available for sale at Rs.6312.0127/sq ft.Amman Constructions Sukriti Floor available for approx. undefined at Rs.6312.0127/sq ft.