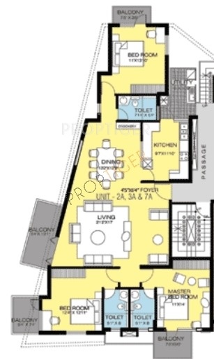
Floor Plan Image of Bearys Group Acacia Lake View

Bearys Group Acacia Lake View has many options to choose for 3 BHK Apartment units. This is a 2D/3D floor plan for 3BHK+3T (2,245 sq ft) of size 2245 sq ft. This floor plan is having 3 toilet and 4 balconies.