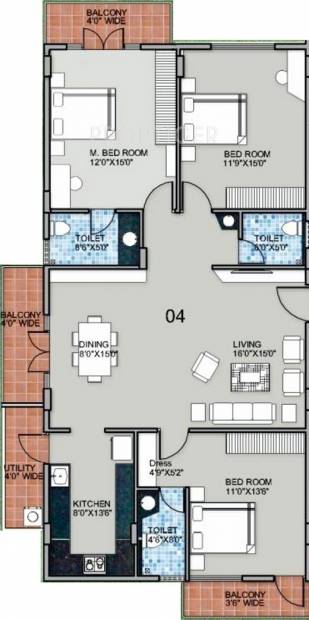
Floor Plan Image of Chithaary Construction Aastha

Chithaary Construction Aastha has many options to choose for 2,3 BHK Apartment units. This is a 2D/3D floor plan for 3BHK+3T (1,790 sq ft) of size 1790 sq ft. This floor plan is having 3 toilet and 3 balconies.