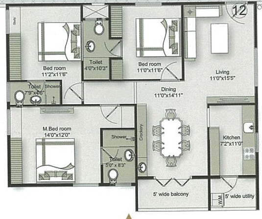
Fame Builders Fame Royal Residency has many options to choose for 2,3 BHK Apartment units. This is a 2D/3D floor plan for 3BHK+3T (1,545 sq ft). This floor plan is having 3 toilet.
PropTiger.com shall neither be responsible nor liable for any inaccuracy in the information provided here and therefore the customers are requested to independently validate the information from the respective developers before making their decisions related to properties displayed here. PropTiger.com, its directors, employees, agents and other representatives shall not be liable for any action taken, cost / expenses / losses incurred, by you.
Thank you for your Interest. Would you like to explore similar projects from below?
Thank you for sharing your details!
We regret for currently not serving in this city.
Share Now
There was an error submitting your request. Please try again later.
Thank You
Thanks for submitting your interest.
Our sales advisor will get in touch with you shortly.
There was an error submitting your request. Please try again later.