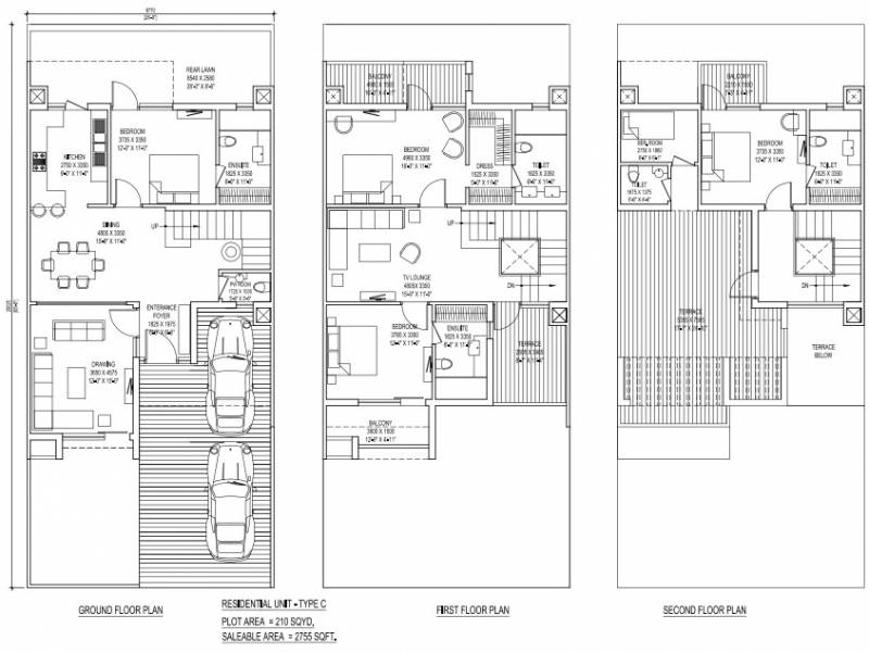
Floor Plan Image of Intellicity Phase I

Intellicity Phase I has many options to choose for 3,4 BHK Villa units. This is a 2D/3D floor plan for 4BHK+5T (2,755 sq ft) + Servant Room of size 2755 sq ft. This floor plan is having 5 toilet and 3 balconies.