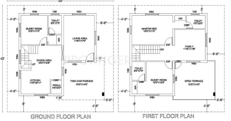
Floor Plan Image of Kristal Jasper

This floor plan image of Kristal Jasper consists of 3BHK+3T (1,682 sq ft) Pooja Room unit with the size of 1682 sq ft available for sale at Rs.10929.8224/sq ft.Kristal Jasper Floor available for approx. undefined at Rs.10929.8224/sq ft.