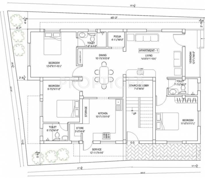
Floor Plan Image of Pushkar Properties The Cedars

Pushkar Properties The Cedars has many options to choose for 3 BHK Apartment units. This is a 2D/3D floor plan for 3BHK+3T (1,385 sq ft) Pooja Room of size 1385 sq ft. This floor plan is having 3 toilet.