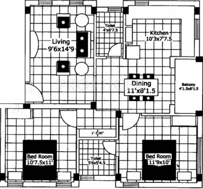
Floor Plan Image of Rajam Housing Aaradhanam

This floor plan image of Rajam Housing Aaradhanam consists of 2BHK+2T (923 sq ft) unit with the size of 923 sq ft available for sale at Rs.5596.0148/sq ft.Rajam Housing Aaradhanam Floor available for approx. undefined at Rs.5596.0148/sq ft.