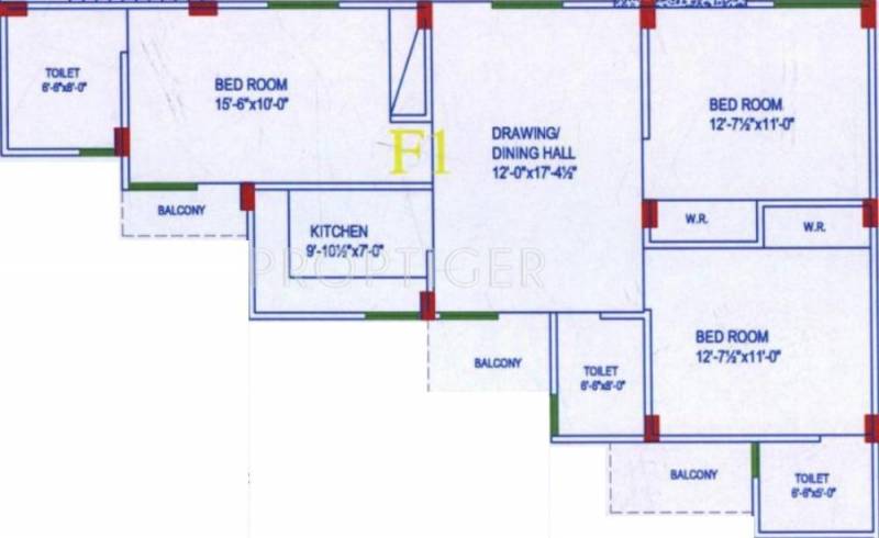
Floor Plan Image of S R Builders And Developers MD Dreams Homes

S R Builders And Developers MD Dreams Homes has many options to choose for 2,3 BHK Apartment units. This is a 2D/3D floor plan for 3BHK+3T (1,266 sq ft) of size 1266 sq ft. This floor plan is having 3 toilet and 3 balconies.