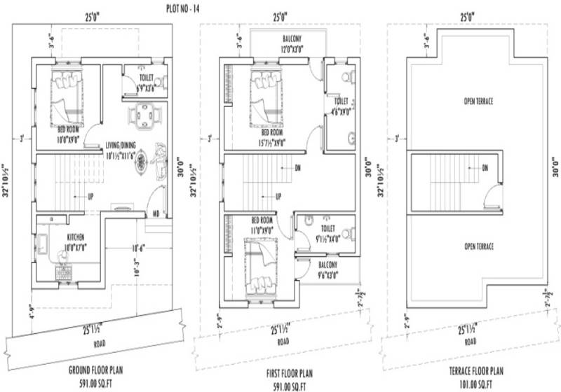
Floor Plan Image of SB Properties Chennai Nandavanam Villas

This floor plan image of SB Properties Chennai Nandavanam Villas consists of 3BHK+3T (1,420 sq ft) unit with the size of 1420 sq ft available for sale at Rs.5818.1973/sq ft.SB Properties Chennai Nandavanam Villas Floor available for approx. undefined at Rs.5818.1973/sq ft.