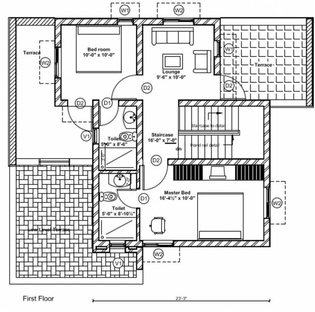
Floor Plan Image of Shriram Properties Sai Shreyas Villa
This floor plan image of Shriram Properties Sai Shreyas Villa consists of 3BHK+3T (1,769 sq ft) unit with the size of 1769 sq ft available for saleShriram Properties Sai Shreyas Villa Floor available for approx. undefined