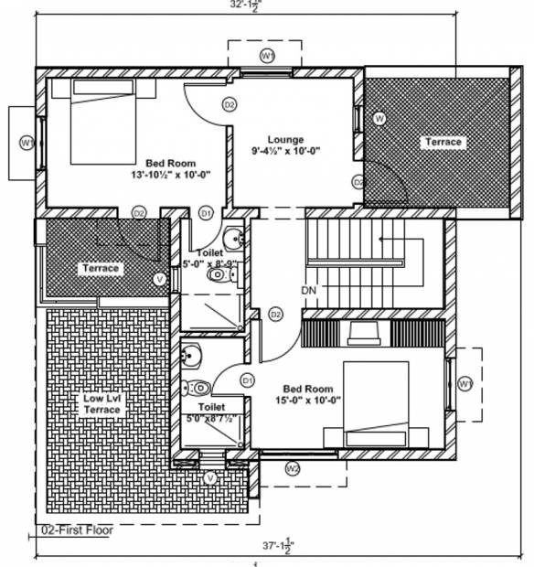
Floor Plan Image of Shriram Properties Sai Shreyas Villa
Shriram Properties Sai Shreyas Villa has many options to choose for 3 BHK Villa units. This is a 2D/3D floor plan for 3BHK+3T (1,698 sq ft) of size 1698 sq ft. This floor plan is having 3 toilet.