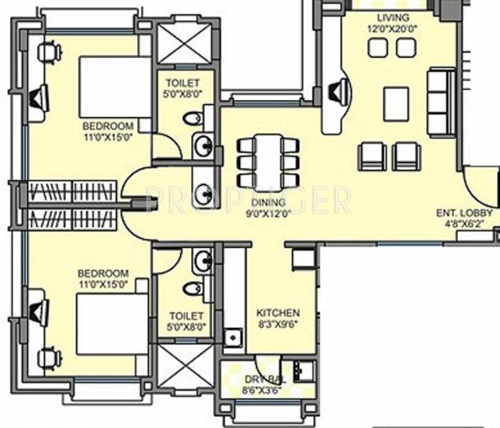
Floor Plan Image of Soham Developers Soham Eternity

This floor plan image of Soham Developers Soham Eternity consists of 2BHK+2T unit with the size of undefined sq ft available for sale at Rs.12322.578/sq ft.Soham Developers Soham Eternity Floor available for approx. undefined at Rs.12322.578/sq ft.