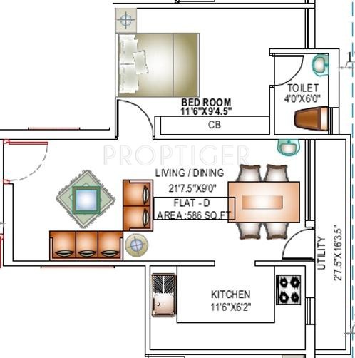
Floor Plan Image of Sri Raghavendra Builders Sri Raghavendra Daimond House

Sri Raghavendra Builders Sri Raghavendra Daimond House has many options to choose for 1,2 BHK Apartment units. This is a 2D/3D floor plan for 1BHK+1T (586 sq ft) of size 586 sq ft. This floor plan is having 1 toilet.