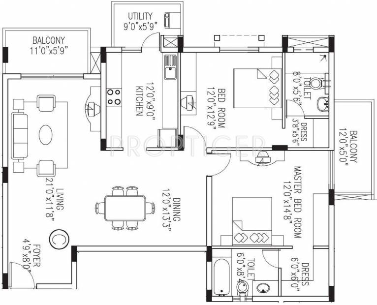
Floor Plan Image of Value Designbuild VDB Celadon

Value Designbuild VDB Celadon has many options to choose for 2,3 BHK Apartment units. This is a 2D/3D floor plan for 2BHK+2T (1,583 sq ft) of size 1583 sq ft. This floor plan is having 2 toilet and 2 balconies.