
14 Photos
Oxoniya Identity
₹ 90.00 L
Builder Price
See inclusions
2, 3 BHK
Apartment
1,196 - 1,723 sq ft
Builtup area
Project Location
Eloor, Kochi
Overview
- Mar'18Possession Start Date
- CompletedStatus
- 38Total Launched apartments
- Mar'16Launch Date
- New and ResaleAvailability
More about Oxoniya Identity
Oxoniya Builders Identity Kochi is an upcoming residential project, presently under construction in the Eloor locality of the city. The project features a range of 2 and 3 BHK spacious and well-designed residential units in sizes ranging from 1196 sq. ft. and 1478 to 1723 sq. ft. respectively. There are a total of 38 units for purchase directly from the builder itself. This newly launched residence is affordably priced and is well connected by various modes of transport to most parts of the city...read more
Approved for Home loans from following banks
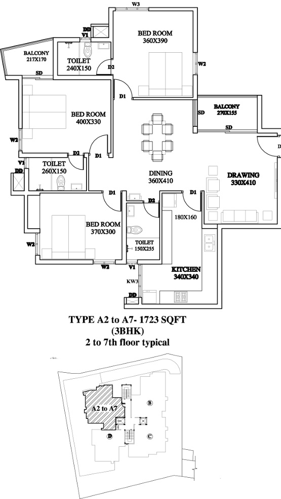
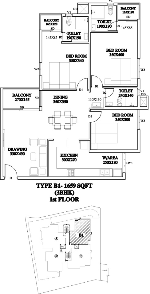
Oxoniya Identity Floor Plans
- 2 BHK
- 3 BHK
Floor Plan | Area | Agreement Price |
---|---|---|
![]() | 1196 sq ft (2BHK+2T) | - |
Report Error
Oxoniya Identity Amenities
- Swimming Pool
- Children's play area
- Club House
- Intercom
- 24 X 7 Security
- Power Backup
- Car Parking
- Gymnasium
Oxoniya Identity Specifications
Flooring
Balcony:
Anti Skid Tiles
Kitchen:
Vitrified Tiles
Living/Dining:
Vitrified Tiles
Master Bedroom:
Vitrified Tiles
Other Bedroom:
Vitrified Tiles
Toilets:
Anti Skid Tiles
Walls
Exterior:
Emulsion Paint
Interior:
Plastic Emulsion Paint
Kitchen:
Glazed Tiles Dado
Toilets:
Glazed Tiles Dado
Gallery
Oxoniya IdentityElevation
Oxoniya IdentityFloor Plans
Oxoniya IdentityNeighbourhood
Contact NRI Helpdesk on
Whatsapp(Chat Only)
Whatsapp(Chat Only)
+91-96939-69347
Contact Helpdesk on
Whatsapp(Chat Only)
Whatsapp(Chat Only)
+91-96939-69347
About Oxoniya Builders

- 4
Total Projects - 0
Ongoing Projects - RERA ID
Discuss about Oxoniya Identity
comment
Disclaimer
PropTiger.com is not marketing this real estate project (“Project”) and is not acting on behalf of the developer of this Project. The Project has been displayed for information purposes only. The information displayed here is not provided by the developer and hence shall not be construed as an offer for sale or an advertisement for sale by PropTiger.com or by the developer.
The information and data published herein with respect to this Project are collected from publicly available sources. PropTiger.com does not validate or confirm the veracity of the information or guarantee its authenticity or the compliance of the Project with applicable law in particular the Real Estate (Regulation and Development) Act, 2016 (“Act”). Read Disclaimer
The information and data published herein with respect to this Project are collected from publicly available sources. PropTiger.com does not validate or confirm the veracity of the information or guarantee its authenticity or the compliance of the Project with applicable law in particular the Real Estate (Regulation and Development) Act, 2016 (“Act”). Read Disclaimer