
24 Photos
PROJECT RERA ID : PR/GJ/VADODARA/VADODARA/Others/MAA06262/251019
Radha Krishna Heights

₹ 26.51 L - ₹ 47.00 L
Builder Price
See inclusions
2, 3 BHK
Apartment
1,089 - 1,731 sq ft
Builtup area
Project Location
Gotri, Vadodara
Overview
- May'23Possession Start Date
- Not LaunchedStatus
- 1 AcresTotal Area
- NewAvailability
More about Radha Krishna Heights
.
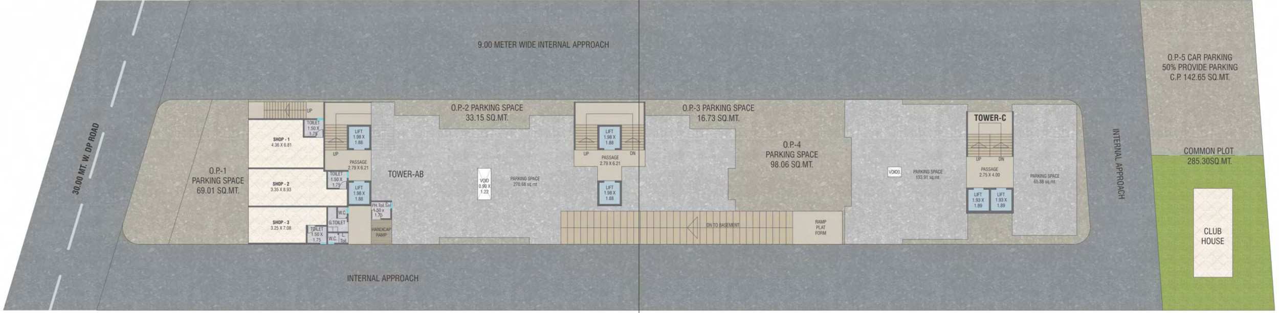
Radha Krishna Heights Floor Plans
- 2 BHK
- 3 BHK
Floor Plan | Area | Builder Price |
---|---|---|
![]() | 1089 sq ft (2BHK+2T) | ₹ 27.00 L |
![]() | 1113 sq ft (2BHK+2T) | ₹ 26.51 L |
Report Error
Radha Krishna Heights Amenities
- Club House
- Children's play area
- Gymnasium
- Car_Parking
- 24X7 Water Supply
- Rain Water Harvesting
- CCTV
- Lift(s)
Radha Krishna Heights Specifications
Doors
Internal:
Laminated Flush Door
Main:
Laminated Flush Door
Flooring
Kitchen:
Vitrified Tiles
Living/Dining:
Vitrified Tiles
Master Bedroom:
Vitrified Tiles
Other Bedroom:
Vitrified Tiles
Gallery
Radha Krishna HeightsElevation
Radha Krishna HeightsVideos
Radha Krishna HeightsFloor Plans
Radha Krishna HeightsNeighbourhood
Radha Krishna HeightsConstruction Updates
Contact NRI Helpdesk on
Whatsapp(Chat Only)
Whatsapp(Chat Only)
+91-96939-69347
Contact Helpdesk on
Whatsapp(Chat Only)
Whatsapp(Chat Only)
+91-96939-69347
About Mangalam Corporation Vadodara
Mangalam Corporation Vadodara
- 1
Total Projects - 0
Ongoing Projects - RERA ID
Discuss about Radha Krishna Heights
comment
Disclaimer
PropTiger.com is not marketing this real estate project (“Project”) and is not acting on behalf of the developer of this Project. The Project has been displayed for information purposes only. The information displayed here is not provided by the developer and hence shall not be construed as an offer for sale or an advertisement for sale by PropTiger.com or by the developer.
The information and data published herein with respect to this Project are collected from publicly available sources. PropTiger.com does not validate or confirm the veracity of the information or guarantee its authenticity or the compliance of the Project with applicable law in particular the Real Estate (Regulation and Development) Act, 2016 (“Act”). Read Disclaimer
The information and data published herein with respect to this Project are collected from publicly available sources. PropTiger.com does not validate or confirm the veracity of the information or guarantee its authenticity or the compliance of the Project with applicable law in particular the Real Estate (Regulation and Development) Act, 2016 (“Act”). Read Disclaimer