
25 Photos
PROJECT RERA ID : PRM/KA/RERA/1251/310/PR/190222/002446
DNR Spring Leafby DNR Group

Price on request
Builder Price
2, 3, 4 BHK
Apartment
853 - 2,357 sq ft
Builtup area
Project Location
Koramangala, Bangalore
Overview
- Aug'23Possession Start Date
- CompletedStatus
- 1 AcresTotal Area
- 59Total Launched apartments
- May'19Launch Date
- ResaleAvailability
Salient Features
- Located within 2kms of St. John’s Medical Hospital for medical facilities
- Fashion essentials at Reliance Digital and Lifestyle Stores located within 900m
- Serene surroundings with BDA Park at 200m walking distance
- Sustainable living with solar energy conservation, rainwater harvesting, and sewage treatment facilities
- Round-the-clock vigilance with CCTV monitoring, gated access, etc
More about DNR Spring Leaf
Spring Leaf brings a new vision of luxury to East Bengaluru, reframing traditional notions of what it means to live here. Modern and poised for exploration, it’s a community unlike any other in the neighbourhood. Spring Leaf nestles at the heart of Koramangala. A setting renowned for its culture, cosmopolitanism and diversity. Spring Leaf is a bold contemporary expression of the East side of Bengaluru. With its crisp lines and modern styling, it’s a unique addition to this classic ne...read more
Approved for Home loans from following banks
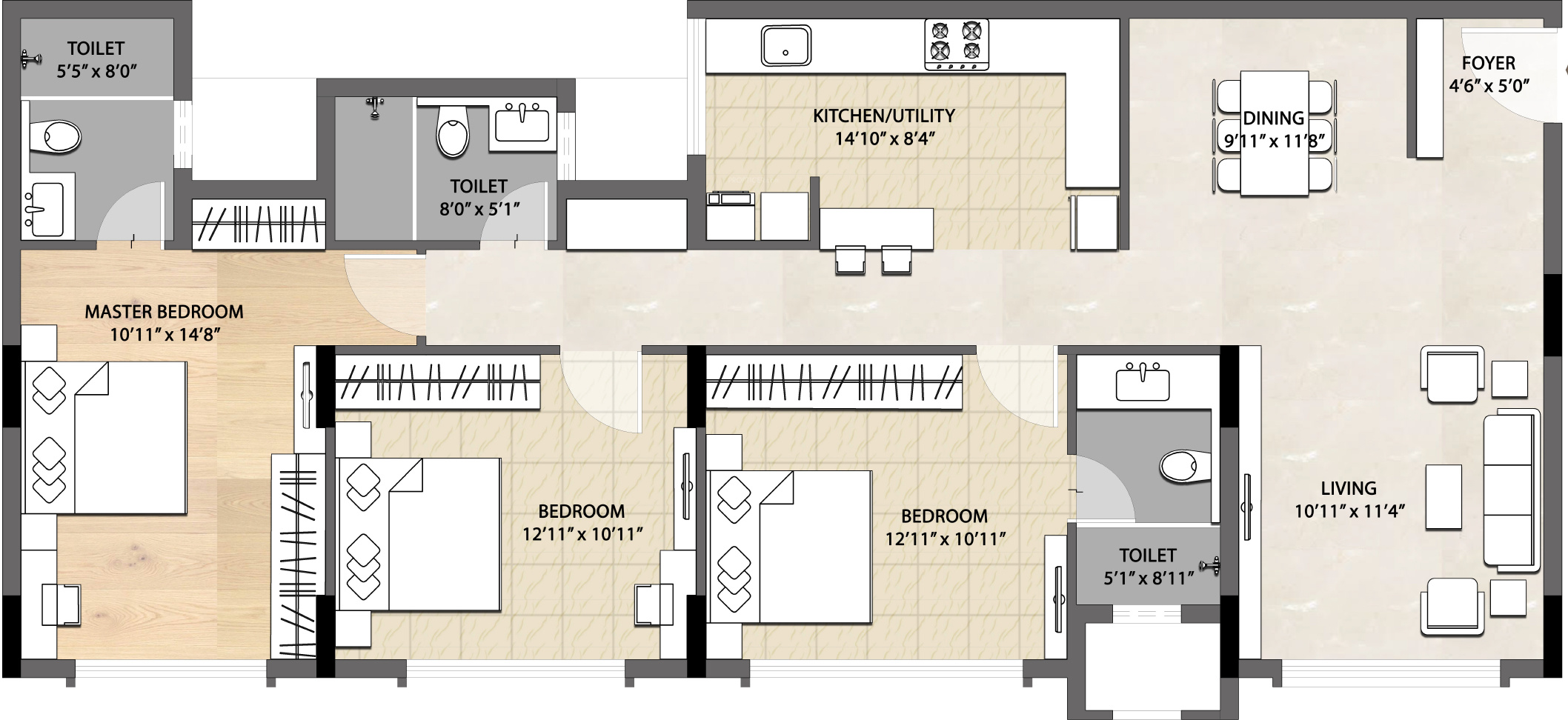
DNR Spring Leaf Floor Plans
- 2 BHK
- 3 BHK
- 4 BHK
Floor Plan | Area | Builder Price |
---|---|---|
853 sq ft (2BHK+2T) | - | |
![]() | 1230 sq ft (2BHK+2T + Study Room) | - |
![]() | 1439 sq ft (2BHK+2T + Study Room) | - |
Report Error
Our Picks
- PriceConfigurationPossession
- Current ProjectDNR Spring Leafby DNR GroupKoramangala, BangaloreData Not Available2,3,4 BHK Apartment853 - 2,357 sq ftAug '23
- RecommendedEsquireby Shriram PropertiesKoramangala, Bangalore₹ 1.41 Cr - ₹ 3.42 Cr2,3,4 BHK Apartment977 - 1,631 sq ftJan '27
- RecommendedBel Airby Kinglife InfraKoramangala, Bangalore₹ 2.91 Cr - ₹ 4.70 Cr3,4 BHK Apartment1,938 - 3,134 sq ftOct '22
DNR Spring Leaf Amenities
- 24 X 7 Security
- CCTV
- Children's play area
- Gymnasium
- Indoor Games
- Lift Available
- Power Backup
- Rain Water Harvesting
DNR Spring Leaf Specifications
Flooring
Balcony:
Ceramic Tiles
Kitchen:
Vitrified Tiles
Other Bedroom:
Vitrified Tiles
Toilets:
Ceramic Tiles
Master Bedroom:
Laminated Wooden Flooring
Living/Dining:
Imported Marble
Walls
Exterior:
Acrylic Paint
Interior:
Emulsion Paint
Toilets:
Dado of Glazed /Ceramic Tiles
Kitchen:
Dado Tiles upto 2 Feet above Platform
Gallery
DNR Spring LeafElevation
DNR Spring LeafVideos
DNR Spring LeafAmenities
DNR Spring LeafFloor Plans
DNR Spring LeafNeighbourhood
DNR Spring LeafOthers
Payment Plans

Contact NRI Helpdesk on
Whatsapp(Chat Only)
Whatsapp(Chat Only)
+91-96939-69347
Contact Helpdesk on
Whatsapp(Chat Only)
Whatsapp(Chat Only)
+91-96939-69347
About DNR Group

- 12
Total Projects - 6
Ongoing Projects - RERA ID
Similar Projects
- PT ASSISTShriram Esquireby Shriram PropertiesKoramangala, Bangalore₹ 1.41 Cr - ₹ 3.42 Cr
- PT ASSISTBel Airby Kinglife InfraKoramangala, Bangalore₹ 2.91 Cr - ₹ 4.70 Cr
- PT ASSISTAvant Casa Blancoby Avant GardeKoramangala, BangalorePrice on request
- PT ASSISTSobha Insigniaby Sobha LimitedBellandur, BangalorePrice on request
- PT ASSISTAdvaitha Akshaby Advaitha VenturesKoramangala, Bangalore₹ 2.82 Cr - ₹ 4.65 Cr
Discuss about DNR Spring Leaf
comment
Disclaimer
PropTiger.com is not marketing this real estate project (“Project”) and is not acting on behalf of the developer of this Project. The Project has been displayed for information purposes only. The information displayed here is not provided by the developer and hence shall not be construed as an offer for sale or an advertisement for sale by PropTiger.com or by the developer.
The information and data published herein with respect to this Project are collected from publicly available sources. PropTiger.com does not validate or confirm the veracity of the information or guarantee its authenticity or the compliance of the Project with applicable law in particular the Real Estate (Regulation and Development) Act, 2016 (“Act”). Read Disclaimer
The information and data published herein with respect to this Project are collected from publicly available sources. PropTiger.com does not validate or confirm the veracity of the information or guarantee its authenticity or the compliance of the Project with applicable law in particular the Real Estate (Regulation and Development) Act, 2016 (“Act”). Read Disclaimer