
8 Photos
2278 sq ft 3 BHK 3T Apartment in SKAV Developers Akasa Apartment
Price on request
Project Location
Frazer Town, Bangalore
Basic Details
Amenities8
Specifications
Property Specifications
- CompletedStatus
- Sep'15Possession Start Date
- 2278 sq ftSize
- Oct'13Launch Date
- ResaleAvailability
Salient Features
- Luxurious properties
- The project offers apartment with perfect combination of contemporary architecture and features to provide comfortable living
- The site is in close proximity to various civic utilities
- Swimming pool, children play area
Skav Akasa Apartment by SKAV at Frazer Town Bangalore is a residential project launched to meet the requirements of an elegant and comfortable residential project for Bangalore across property seekers with varied budgets. Current status of properties in Skav Akasa Apartment are Ready to move. Skav Akasa Apartment by SKAV is conveniently located and provides for spacious residential houses in Frazer Town Bangalore. Skav Akasa Apartment offers various residential units with wide range of options a...more
Approved for Home loans from following banks
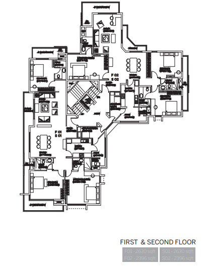
Price & Floorplan
3BHK+3T (2,278 sq ft)
Price On Request

- 3 Bathrooms
- 3 Bedrooms
Report Error
Gallery
SKAV Akasa ApartmentElevation
SKAV Akasa ApartmentFloor Plans
SKAV Akasa ApartmentNeighbourhood
Other properties in SKAV Developers Akasa Apartment
- 3 BHK
Contact NRI Helpdesk on
Whatsapp(Chat Only)
Whatsapp(Chat Only)
+91-96939-69347
Contact Helpdesk on
Whatsapp(Chat Only)
Whatsapp(Chat Only)
+91-96939-69347
About SKAV Developers

- 9
Total Projects - 1
Ongoing Projects - RERA ID
At SKAV, the passion to create inspiring spaces drives all our endeavours. Endeavors that translate into homes that personify gracious living, offices in which you would love to work, and retail spaces that exemplifies shopping experiences. Our uncompromising commitment to quality is not just limited to designing and creating great spaces. Be it luxury homes that resonate with your lifestyle or the attention to smaller details in office and retail spaces, at SKAV, the focus is on the overall exp... read more
Similar Properties
- PT ASSISTReputed Builder 3BHK+3Tby Reputed BuilderFrazer Town,BangalorePrice on request
- PT ASSISTReputed Builder 2BHK+2Tby Reputed BuilderFrazer Town,BangalorePrice on request
- PT ASSISTSpectra 4BHK+4T (2,268 sq ft) Servant Roomby Spectra ConstructionsCharles Campbell Road, Cox Town, BangalorePrice on request
- PT ASSISTNarayan 3BHK+3Tby NarayanIndira Nagar, BangalorePrice on request
- PT ASSISTNarayan 2BHK+2Tby NarayanIndira Nagar, BangalorePrice on request
Discuss about SKAV Akasa Apartment
comment
Disclaimer
PropTiger.com is not marketing this real estate project (“Project”) and is not acting on behalf of the developer of this Project. The Project has been displayed for information purposes only. The information displayed here is not provided by the developer and hence shall not be construed as an offer for sale or an advertisement for sale by PropTiger.com or by the developer.
The information and data published herein with respect to this Project are collected from publicly available sources. PropTiger.com does not validate or confirm the veracity of the information or guarantee its authenticity or the compliance of the Project with applicable law in particular the Real Estate (Regulation and Development) Act, 2016 (“Act”). Read Disclaimer
The information and data published herein with respect to this Project are collected from publicly available sources. PropTiger.com does not validate or confirm the veracity of the information or guarantee its authenticity or the compliance of the Project with applicable law in particular the Real Estate (Regulation and Development) Act, 2016 (“Act”). Read Disclaimer