
6 Photos
1113 sq ft 3 BHK 2T Apartment in Ample Properties Sanas Enclave
Price on request
Project Location
Valasaravakkam, Chennai
Basic Details
Amenities8
Specifications
Property Specifications
- CompletedStatus
- May'16Possession Start Date
- 1113 sq ftSize
- 5Total Launched apartments
- Jun'15Launch Date
- ResaleAvailability
Salient Features
- The project is equipped with amenities like rainwater harvesting
- Accessibility to key landmarks
- Close to schools, banks
Chennai is a developing area and it is becoming more facilitated due to the partial real estate projects. Ample Properties Sanas Enclave Residency Company has developed well-appointed plots in the Valasaravakkam region. The entire project is all set for moving in and the area of each apartment is based on the request value and the price is also based on the request value. The required necessities like park, petrol pump, school, ATM, bank, hospital, bus station, railway station, higher education ...more
Approved for Home loans from following banks
- + 3 more banksshow less
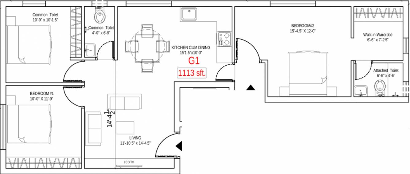
Price & Floorplan
3BHK+2T (1,113 sq ft)
Price On Request

2D
- 2 Bathrooms
- 3 Bedrooms
Report Error
Gallery
Ample Sanas EnclaveElevation
Ample Sanas EnclaveFloor Plans
Other properties in Ample Properties Sanas Enclave
Contact NRI Helpdesk on
Whatsapp(Chat Only)
Whatsapp(Chat Only)
+91-96939-69347
Contact Helpdesk on
Whatsapp(Chat Only)
Whatsapp(Chat Only)
+91-96939-69347
About Ample Properties

- 47
Years of Experience - 8
Total Projects - 0
Ongoing Projects - RERA ID
Similar Properties
- PT ASSISTJain 3BHK+3Tby Jain Housing And ConstructionVembuli Amman Koil Street, Virugambakkam, Near K K Nagar, ChennaiPrice on request
- PT ASSISTDakshin 2BHK+2Tby Dakshin ConstructionNo 1, Vembulliamman, Koil Street West, K.K.Nagar, Virugambakkam, ChennaiPrice on request
- PT ASSISTReputed Builder 3BHK+3T (1,200 sq ft)by Reputed BuilderNew Colony, VirugambakkamPrice on request
- PT ASSISTAnuna 2BHK+2T (1,085 sq ft)by Anuna BuildersValasaravakkam, ChennaiPrice on request
- PT ASSISTACE 3BHK+3T (1,245 sq ft)by ACEValasaravakkam, ChennaiPrice on request
Discuss about Ample Sanas Enclave
comment
Disclaimer
PropTiger.com is not marketing this real estate project (“Project”) and is not acting on behalf of the developer of this Project. The Project has been displayed for information purposes only. The information displayed here is not provided by the developer and hence shall not be construed as an offer for sale or an advertisement for sale by PropTiger.com or by the developer.
The information and data published herein with respect to this Project are collected from publicly available sources. PropTiger.com does not validate or confirm the veracity of the information or guarantee its authenticity or the compliance of the Project with applicable law in particular the Real Estate (Regulation and Development) Act, 2016 (“Act”). Read Disclaimer
The information and data published herein with respect to this Project are collected from publicly available sources. PropTiger.com does not validate or confirm the veracity of the information or guarantee its authenticity or the compliance of the Project with applicable law in particular the Real Estate (Regulation and Development) Act, 2016 (“Act”). Read Disclaimer