
6 Photos
489 sq ft 1 BHK 1T Apartment in CC Builders Annai Illamby CC Builders
Price on request
Project Location
East Tambaram, Chennai
Basic Details
Amenities1
Specifications
Property Specifications
- CompletedStatus
- Jun'13Possession Start Date
- 489 sq ftSize
- 6Total Launched apartments
- Sep'12Launch Date
- ResaleAvailability
Salient Features
- Some of the amenities are rainwater harvesting
- Accessibility to key landmarks
- Conviniently located near schools, hospitals, restaurants, banks
Annai Illam, a residential concept of community living, is a widely spread residential project by the CC Builders.CC Builders is India's premier real estate and infrastructure development company. Annai Illam is located at Rajeshwari Street,Somu Nagar, East Tambaram, Chennai offering a blessed nature friendly lifestyle in the heart of the City.CC Builders Annai Illam is offering a beautiful lifestyle in 1BHK, 2BHK,3BHK with a herd of amenities such as Central Greens, Clubhouse, Swimming Pool, Gr...more
Approved for Home loans from following banks
Price & Floorplan
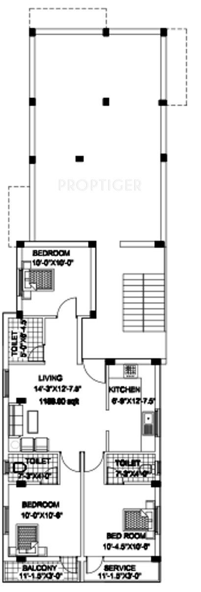
1BHK+1T (489 sq ft)
Price On Request

2D
- 1 Bathroom
- 1 Bedroom
Report Error
Gallery
CC Builders Annai IllamElevation
CC Builders Annai IllamFloor Plans
CC Builders Annai IllamNeighbourhood
Other properties in CC Builders Annai Illam
- 1 BHK
- 2 BHK
- 3 BHK
Contact NRI Helpdesk on
Whatsapp(Chat Only)
Whatsapp(Chat Only)
+91-96939-69347
Contact Helpdesk on
Whatsapp(Chat Only)
Whatsapp(Chat Only)
+91-96939-69347
About CC Builders

- 73
Total Projects - 0
Ongoing Projects - RERA ID
CC Builders is a renowned real estate developer based in Chennai. The group is headed by its Managing Director, Chelliah Arumugam. The group has worked on about 66 projects. Unique Selling Point The group believes and focuses on customer satisfaction and quality. It adheres to quality standards at every stage of construction. The company has a team of dedicated professionals who work as a team for successful delivery of projects. Landmark Projects Ganpathy Arcade is a project by the group and is... read more
Similar Properties
- PT ASSISTReputed Builder 1BHK+1Tby Reputed BuilderNear Gowrivakkam, ChennaiPrice on request
- PT ASSISTGold 1BHK+1T (514 sq ft)by Gold Bell FoundationNew Balaji Nagar Main Rd, East Tambaram, ChennaiPrice on request
- PT ASSISTRoyal 1BHK+1T (518 sq ft)by Royal FriendsPlot No.7, Natarajan Street, East Tambaram SanatoriumPrice on request
- PT ASSISTRoyal 2BHK+2Tby RoyalEaswaran Kovil Street, East Tambaram, ChennaiPrice on request
- PT ASSISTPoomalai 1BHK+1T (557 sq ft)by Poomalai HousingDoor No. 41/1, Venkambakkam Main Road, Puthur Village, Near Camp Road, Selaiyur, ChennaiPrice on request
Discuss about CC Builders Annai Illam
comment
Disclaimer
PropTiger.com is not marketing this real estate project (“Project”) and is not acting on behalf of the developer of this Project. The Project has been displayed for information purposes only. The information displayed here is not provided by the developer and hence shall not be construed as an offer for sale or an advertisement for sale by PropTiger.com or by the developer.
The information and data published herein with respect to this Project are collected from publicly available sources. PropTiger.com does not validate or confirm the veracity of the information or guarantee its authenticity or the compliance of the Project with applicable law in particular the Real Estate (Regulation and Development) Act, 2016 (“Act”). Read Disclaimer
The information and data published herein with respect to this Project are collected from publicly available sources. PropTiger.com does not validate or confirm the veracity of the information or guarantee its authenticity or the compliance of the Project with applicable law in particular the Real Estate (Regulation and Development) Act, 2016 (“Act”). Read Disclaimer