
4 Photos
786 sq ft 2 BHK 2T Apartment in CC Builders Balaji Enclaveby CC Builders
Price on request
Project Location
Thirumudivakkam, Chennai
Basic Details
Amenities6
Specifications
Property Specifications
- CompletedStatus
- Apr'14Possession Start Date
- 786 sq ftSize
- 4Total Launched apartments
- Sep'13Launch Date
- ResaleAvailability
Balaji Enclave, designed around your life, making sure that you enjoy a stress-free living.With class amenities at Balaji Enclave you can feel safe, secure relaxed and happy.Balaji Enclave is the first step to getting the things The essence of Style you want out of life. At Balaji Enclave, you have a thousand reasons to smile for; you are right next to everything that you want.
Approved for Home loans from following banks
- + 3 more banksshow less
Price & Floorplan
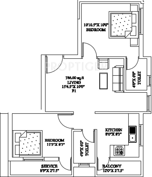
2BHK+2T (786 sq ft)
Price On Request

2D
- 2 Bathrooms
- 1 Balcony
- 2 Bedrooms
Report Error
Gallery
CC Builders Balaji EnclaveElevation
CC Builders Balaji EnclaveFloor Plans
Other properties in CC Builders Balaji Enclave
- 2 BHK
- 3 BHK
Contact NRI Helpdesk on
Whatsapp(Chat Only)
Whatsapp(Chat Only)
+91-96939-69347
Contact Helpdesk on
Whatsapp(Chat Only)
Whatsapp(Chat Only)
+91-96939-69347
About CC Builders

- 73
Total Projects - 0
Ongoing Projects - RERA ID
CC Builders is a renowned real estate developer based in Chennai. The group is headed by its Managing Director, Chelliah Arumugam. The group has worked on about 66 projects. Unique Selling Point The group believes and focuses on customer satisfaction and quality. It adheres to quality standards at every stage of construction. The company has a team of dedicated professionals who work as a team for successful delivery of projects. Landmark Projects Ganpathy Arcade is a project by the group and is... read more
Similar Properties
- PT ASSISTCC Builders 2BHK+2Tby CC BuildersManikandan Nagar, Kundrathur, Chennai.Price on request
- PT ASSISTGee 2BHK+2T (816 sq ft)by Gee Ge StructuralsAnakaputhur, Near Pammal, ChennaiPrice on request
- PT ASSISTCrest 2BHK+2T (730 sq ft)by Crest HomesPlot No. C & D, Venkateswara Nagar, AnakaputhurPrice on request
- PT ASSISTCC Builders 3BHK+3Tby CC BuildersManikandan Nagar, Kundrathur, Chennai.Price on request
- PT ASSISTCC Builders 2BHK+2T (847 sq ft)by CC BuildersService Road, Anakaputhur, ChennaiPrice on request
Discuss about CC Builders Balaji Enclave
comment
Disclaimer
PropTiger.com is not marketing this real estate project (“Project”) and is not acting on behalf of the developer of this Project. The Project has been displayed for information purposes only. The information displayed here is not provided by the developer and hence shall not be construed as an offer for sale or an advertisement for sale by PropTiger.com or by the developer.
The information and data published herein with respect to this Project are collected from publicly available sources. PropTiger.com does not validate or confirm the veracity of the information or guarantee its authenticity or the compliance of the Project with applicable law in particular the Real Estate (Regulation and Development) Act, 2016 (“Act”). Read Disclaimer
The information and data published herein with respect to this Project are collected from publicly available sources. PropTiger.com does not validate or confirm the veracity of the information or guarantee its authenticity or the compliance of the Project with applicable law in particular the Real Estate (Regulation and Development) Act, 2016 (“Act”). Read Disclaimer