
6 Photos
1169 sq ft 3 BHK 2T Apartment in CSS Builders Karthik Flatsby CSS Builders
Price on request
Project Location
Kolathur, Chennai
Basic Details
Amenities6
Specifications
Property Specifications
- CompletedStatus
- Sep'14Possession Start Date
- 1169 sq ftSize
- 6Total Launched apartments
- Sep'13Launch Date
- ResaleAvailability
The CSS Builders Karthik Flats constructions Group is offering 2 and 3 BHK apartments in the Kolathur region of Chennai. The area of these apartments is about 886 to 1173 sq ft. These plots are all set for moving in purpose which has all the necessary provisions like bank, ATM, hospital, bus station, restaurant, school, petrol pump, etc. nearby. The other facilities of the project are gym and a beautiful playground for the children, an intercom service, 24 hours security back up facility, a beau...more
Approved for Home loans from following banks
Price & Floorplan
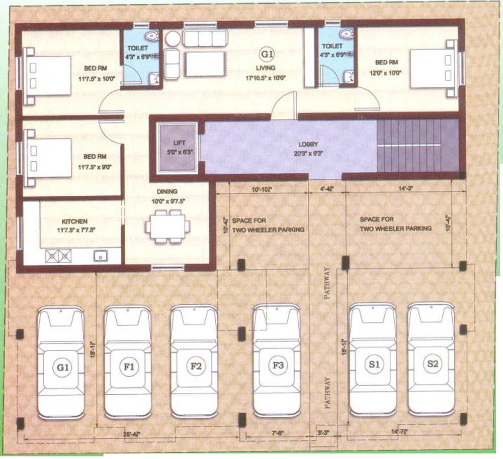
3BHK+2T (1,169 sq ft)
Price On Request

2D
- 2 Bathrooms
- 3 Bedrooms
Report Error
Gallery
CSS Karthik FlatsElevation
CSS Karthik FlatsFloor Plans
CSS Karthik FlatsNeighbourhood
Other properties in CSS Builders Karthik Flats
Contact NRI Helpdesk on
Whatsapp(Chat Only)
Whatsapp(Chat Only)
+91-96939-69347
Contact Helpdesk on
Whatsapp(Chat Only)
Whatsapp(Chat Only)
+91-96939-69347
About CSS Builders

- 1
Total Projects - 0
Ongoing Projects - RERA ID
Since the time of its inception, CSS Builders is very much famous in the core field of Real Estate for their motivational constructions and timely completion of their every project. With a team of most experienced engineers and skilled professionals, this Real Estate company ensures superior quality construction every time without any confusion. They keep their eyes stern to every step of building residential spaces and care it as if their own. The company continues to upgrade themselves with la... read more
Similar Properties
- PT ASSISTRaj 3BHK+3T (1,200 sq ft)by Raj Meena BuildersMathavaram Redhills High Road, Anna Nagar, ChennaiPrice on request
- PT ASSISTChaitanya 2BHK+2T (1,316 sq ft)by Chaitanya ShantiniketanKonnur High Road, Vasantha Garden, Ayanavaram, ChennaiPrice on request
- PT ASSISTRajus 3BHK+3Tby Rajus FlatAnna Nagar, ChennaiPrice on request
- PT ASSISTRajus 2BHK+2Tby Rajus FlatAnna Nagar, ChennaiPrice on request
- PT ASSISTPushkar 3BHK+3Tby Pushkar PropertiesPlot No. 2486, Door No. 11, "AJ" Block, 5th Street, Anna Nagar, ChennaiPrice on request
Discuss about CSS Karthik Flats
comment
Disclaimer
PropTiger.com is not marketing this real estate project (“Project”) and is not acting on behalf of the developer of this Project. The Project has been displayed for information purposes only. The information displayed here is not provided by the developer and hence shall not be construed as an offer for sale or an advertisement for sale by PropTiger.com or by the developer.
The information and data published herein with respect to this Project are collected from publicly available sources. PropTiger.com does not validate or confirm the veracity of the information or guarantee its authenticity or the compliance of the Project with applicable law in particular the Real Estate (Regulation and Development) Act, 2016 (“Act”). Read Disclaimer
The information and data published herein with respect to this Project are collected from publicly available sources. PropTiger.com does not validate or confirm the veracity of the information or guarantee its authenticity or the compliance of the Project with applicable law in particular the Real Estate (Regulation and Development) Act, 2016 (“Act”). Read Disclaimer