
4 Photos
Pushkar The Water Front
Price on request
Builder Price
2 BHK
Apartment
680 - 995 sq ft
Builtup area
Project Location
Korattur, Chennai
Overview
- Sep'09Possession Start Date
- CompletedStatus
- 8Total Launched apartments
- ResaleAvailability
Salient Features
- Known for amenities like landscaped gardens, swimming pool, olympic size swimming pool, tree plantation, rainwater harvesting, children play area
- Accessibility to key landmarks
- Schools, banks within close vicinity
More about Pushkar The Water Front
Korattur in Chennai has a ready to move in project of great apartments by the Pushkar the Water Front Company. The neighbourhood is well settled with high school, bank, primary school, play school, atm, hospital, office complex, play school, bus stand, and restaurant etc facilities near at hand. Other amenities that this project offers are a community with gates, a nice landscape, well maintained sewage lines, gym, rain water harvesting system, security service, there is an availability of parki...read more
Approved for Home loans from following banks
- + 3 more banksshow less
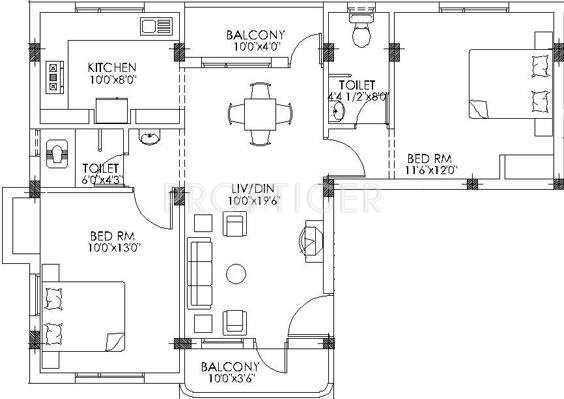
Pushkar The Water Front Floor Plans
Report Error
Our Picks
- PriceConfigurationPossession
- Current ProjectPushkar The Water Frontby Pushkar PropertiesKorattur, ChennaiData Not Available2 BHK Apartment680 - 995 sq ftSep '09
- RecommendedRWD Waterfrontby Ramky Wavoo DevelopersKolathur, Chennai₹ 78.60 L - ₹ 1.64 Cr2,3,4 BHK Apartment1,046 - 2,185 sq ftDec '27
- RecommendedAyana 95by Nature Residences DevelopmentMogappair, Chennai₹ 56.00 L - ₹ 1.11 Cr1,2 BHK Apartment665 - 1,299 sq ftJun '25
Pushkar The Water Front Amenities
- Children's play area
- Rain Water Harvesting System
- Intercom Facility
- Security System
- 24Hr Backup
- Maintenance Staff
- Landscape Garden and Tree Planting
Pushkar The Water Front Specifications
Doors
Internal:
Teak Wood Frame
Main:
Decorative with Brass Fittings
Flooring
Balcony:
Vitrified Tiles
Kitchen:
Vitrified Tiles
Living/Dining:
Vitrified Tiles
Master Bedroom:
Vitrified Tiles
Other Bedroom:
Vitrified Tiles
Toilets:
Vitrified Tiles
Gallery
Pushkar The Water FrontElevation
Pushkar The Water FrontFloor Plans
Contact NRI Helpdesk on
Whatsapp(Chat Only)
Whatsapp(Chat Only)
+91-96939-69347
Contact Helpdesk on
Whatsapp(Chat Only)
Whatsapp(Chat Only)
+91-96939-69347
About Pushkar Properties

- 23
Years of Experience - 119
Total Projects - 15
Ongoing Projects - RERA ID
Pushkar Properties Private Limited, incorporated in the year 2003, is a front runner in the Indian construction scene on both the residential and commercial front. We are a company that is solely driven by the lasting principles of commitment to customer satisfaction. Based on a strong second-to-none approach, we have established for ourselves, a solid reputation over the last couple of years for exceeding customer expectations on all fronts. Elegance of design and a strong commitment to quality... read more
Similar Projects
- PT ASSISTRWD Waterfrontby Ramky Wavoo DevelopersKolathur, Chennai₹ 78.60 L - ₹ 1.64 Cr
- PT ASSISTAyana 95by Nature Residences DevelopmentMogappair, Chennai₹ 46.48 L - ₹ 90.80 L
- PT ASSISTBrigade Xanadu Cluster III Celesteby Brigade GroupMogappair, Chennai₹ 1.05 Cr - ₹ 1.86 Cr
- PT ASSISTS And P Courtyardby S And P FoundationMogappair, Chennai₹ 39.00 L - ₹ 1.10 Cr
- PT ASSISTSri Bhagya Rathis Luxuryby Sri Bhagya HomesKolathur, ChennaiPrice on request
Discuss about Pushkar The Water Front
comment
Disclaimer
PropTiger.com is not marketing this real estate project (“Project”) and is not acting on behalf of the developer of this Project. The Project has been displayed for information purposes only. The information displayed here is not provided by the developer and hence shall not be construed as an offer for sale or an advertisement for sale by PropTiger.com or by the developer.
The information and data published herein with respect to this Project are collected from publicly available sources. PropTiger.com does not validate or confirm the veracity of the information or guarantee its authenticity or the compliance of the Project with applicable law in particular the Real Estate (Regulation and Development) Act, 2016 (“Act”). Read Disclaimer
The information and data published herein with respect to this Project are collected from publicly available sources. PropTiger.com does not validate or confirm the veracity of the information or guarantee its authenticity or the compliance of the Project with applicable law in particular the Real Estate (Regulation and Development) Act, 2016 (“Act”). Read Disclaimer