
8 Photos
CC Builders Sachin Enclaveby CC Builders
Price on request
Builder Price
2 BHK
Apartment
875 - 1,009 sq ft
Builtup area
Project Location
Kotturpuram, Chennai
Overview
- Jan'14Possession Start Date
- CompletedStatus
- 5Total Launched apartments
- Nov'12Launch Date
- ResaleAvailability
More about CC Builders Sachin Enclave
Sachin Enclave by CC Builders, located in Kotturpuram, Chennai, offers apartments with the price being on request. It provides amenities such as rainwater harvesting, intercom, 24x7 security, and power backup. Situated in south Chennai, Kotturpuram is well-known for prominent landmarks such as IIT Chennai, Anna Centenary Library, Anna University, Kotturpuram Nandanam Bridge and Birla Planetarium. The key builders include Firm Foundations, Sree Foundations, CC Builders, Appaswamy and Kgeyes Resid...read more
Approved for Home loans from following banks
- + 6 more banksshow less
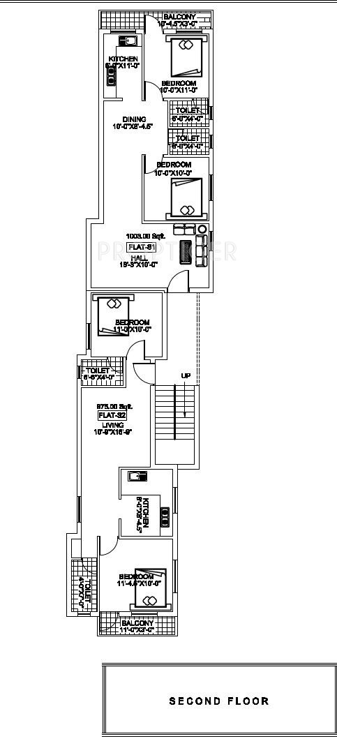
CC Builders Sachin Enclave Floor Plans
- 2 BHK
Floor Plan | Area | Builder Price |
---|---|---|
![]() | 875 sq ft (2BHK+2T) | - |
![]() | 915 sq ft (2BHK+2T) | - |
![]() | 1009 sq ft (2BHK+3T) | - |
Report Error
Our Picks
- PriceConfigurationPossession
- Current ProjectCC Builders Sachin Enclaveby CC BuildersKotturpuram, ChennaiData Not Available2 BHK Apartment875 - 1,009 sq ftJan '14
- RecommendedQuadrantby TVHAdyar, Chennai₹ 4.49 Cr - ₹ 7.28 Cr3,4 BHK Apartment2,235 - 4,715 sq ftApr '17
- RecommendedTower Of Adyarby Nahar GroupAdyar, Chennai₹ 2.64 Cr - ₹ 3.75 Cr4 BHK Apartment1,703 - 2,416 sq ftNov '20
CC Builders Sachin Enclave Amenities
- Rain Water Harvesting
- Intercom
- 24 X 7 Security
- Power Backup
CC Builders Sachin Enclave Specifications
Doors
Internal:
Teak Wood Frame
Main:
Teak Wood Frame
Flooring
Balcony:
Vitrified Tiles
Kitchen:
Vitrified Tiles
Living/Dining:
Vitrified Tiles
Master Bedroom:
Vitrified Tiles
Other Bedroom:
Vitrified Tiles
Toilets:
Anti Skid Tiles
Gallery
CC Builders Sachin EnclaveElevation
CC Builders Sachin EnclaveFloor Plans
CC Builders Sachin EnclaveNeighbourhood
Contact NRI Helpdesk on
Whatsapp(Chat Only)
Whatsapp(Chat Only)
+91-96939-69347
Contact Helpdesk on
Whatsapp(Chat Only)
Whatsapp(Chat Only)
+91-96939-69347
About CC Builders

- 73
Total Projects - 0
Ongoing Projects - RERA ID
CC Builders is a renowned real estate developer based in Chennai. The group is headed by its Managing Director, Chelliah Arumugam. The group has worked on about 66 projects. Unique Selling Point The group believes and focuses on customer satisfaction and quality. It adheres to quality standards at every stage of construction. The company has a team of dedicated professionals who work as a team for successful delivery of projects. Landmark Projects Ganpathy Arcade is a project by the group and is... read more
Similar Projects
- PT ASSISTTVH Quadrantby TVHAdyar, Chennai₹ 4.49 Cr - ₹ 7.28 Cr
- PT ASSISTTower Of Adyarby Nahar GroupAdyar, Chennai₹ 2.64 Cr - ₹ 3.75 Cr
- PT ASSISTNoor Pearlby Arc Developers ChennaiVelachery, Chennai₹ 4.20 Cr
- PT ASSISTUrban Marvellousby Urban Tree InfrastructuresT Nagar, Chennai₹ 2.53 Cr - ₹ 6.79 Cr
- PT ASSISTIsha Majesticaby Isha HomesT Nagar, ChennaiPrice on request
Discuss about CC Builders Sachin Enclave
comment
Disclaimer
PropTiger.com is not marketing this real estate project (“Project”) and is not acting on behalf of the developer of this Project. The Project has been displayed for information purposes only. The information displayed here is not provided by the developer and hence shall not be construed as an offer for sale or an advertisement for sale by PropTiger.com or by the developer.
The information and data published herein with respect to this Project are collected from publicly available sources. PropTiger.com does not validate or confirm the veracity of the information or guarantee its authenticity or the compliance of the Project with applicable law in particular the Real Estate (Regulation and Development) Act, 2016 (“Act”). Read Disclaimer
The information and data published herein with respect to this Project are collected from publicly available sources. PropTiger.com does not validate or confirm the veracity of the information or guarantee its authenticity or the compliance of the Project with applicable law in particular the Real Estate (Regulation and Development) Act, 2016 (“Act”). Read Disclaimer