
39 Photos
PROJECT RERA ID : Rera Not Applicable
982 sq ft 2 BHK 2T Apartment in Rus And Promoters Star City
Price on request
Project Location
Perungalathur, Chennai
Basic Details
Amenities9
Specifications
Property Specifications
- CompletedStatus
- Jan'16Possession Start Date
- 982 sq ftSize
- 154Total Launched apartments
- Aug'14Launch Date
- ResaleAvailability
Salient Features
- Perungulattur Railway Station (1.3 Km)
- Happy Day International Play School (3.0 Km)
Having an experience of over two decades, Ruby Builders and Promoters is a leading real estate company. The company portfolio includes constructing residential, commercial and artistic homes. Each flat of this project is designed in keeping with latest architectural features and beautiful interiors. The amenities provided here includes covered car parking area and water supply. Perungalathur is located in the south-western parts of Chennai and located between major places like Tambaram and Vanda...more
Approved for Home loans from following banks
Payment Plans

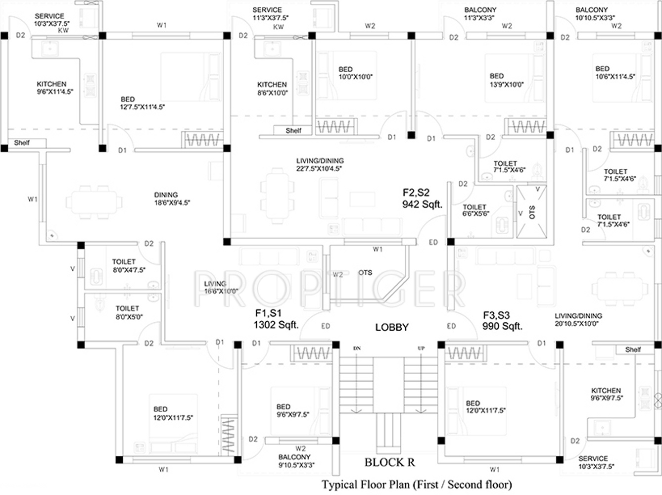
Price & Floorplan
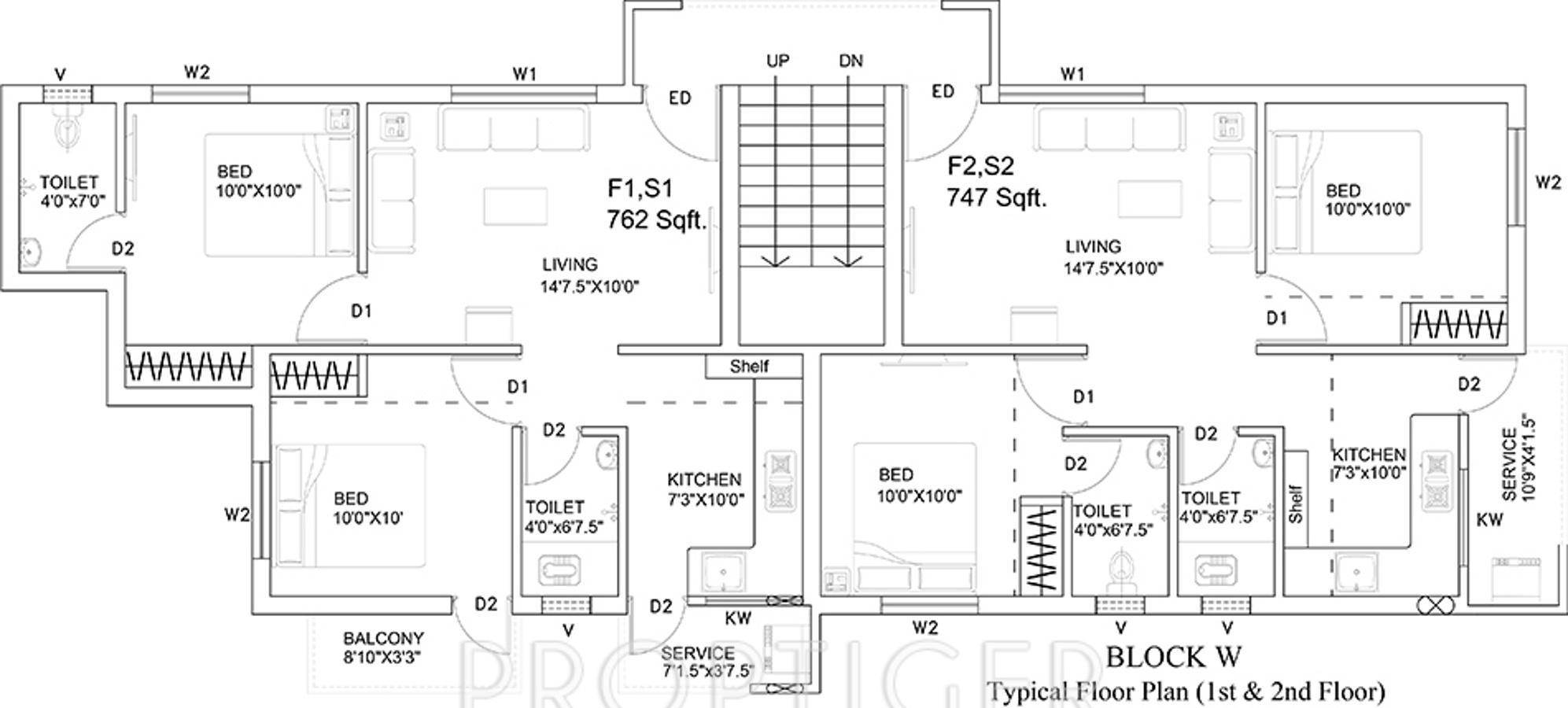
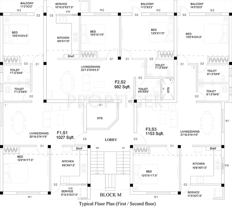
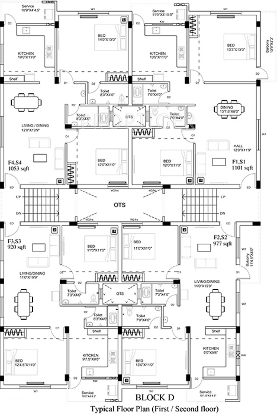
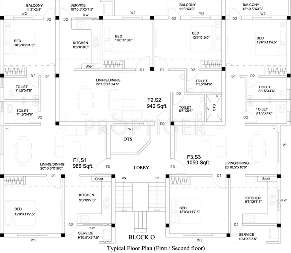
2BHK+2T (982 sq ft)
Price On Request

2D
- 2 Bathrooms
- 2 Bedrooms
Report Error
Gallery
Ruby Star CityElevation
Ruby Star CityFloor Plans
Ruby Star CityNeighbourhood
Ruby Star CityOthers
Other properties in Ruby Builders And Promoters Star City
- 2 BHK
- 3 BHK
Contact NRI Helpdesk on
Whatsapp(Chat Only)
Whatsapp(Chat Only)
+91-96939-69347
Contact Helpdesk on
Whatsapp(Chat Only)
Whatsapp(Chat Only)
+91-96939-69347
About Ruby Builders And Promoters

- 29
Years of Experience - 53
Total Projects - 5
Ongoing Projects - RERA ID
Ruby Builders is known as one of the leading real estate and construction companies in Chennai. Conformed as an ISO 9001-2008 certified company, the firm has achieved business excellence by showing consistency in the standard of construction services. Their portfolio comprises of building artistic residences, commercial hubs and apartments. The firm wishes to build the strong relationship with their clients by leveraging upon latest technology, cost effective strategies and modern machinery. The... read more
Similar Properties
- PT ASSISTGirishchandra 2BHK+2T (943 sq ft)by Girishchandra ConstructionsVandalur,ChennaiPrice on request
- PT ASSISTGirishchandra 3BHK+3T (1,119 sq ft)by Girishchandra ConstructionsVandalur,ChennaiPrice on request
- PT ASSISTHaresh 2BHK+2T (950 sq ft)by Haresh HousingNear Mudichur Road,Tambaram, ChennaiPrice on request
- PT ASSISTYashva 2BHK+2T (996 sq ft)by Yashva Classic HomesVandalur, Chennai.Price on request
- PT ASSISTSakthivel 2BHK+2T (980 sq ft)by Sakthivel3/38 & 3/38A, Mudichur Main Road, Mudichur, ChennaiPrice on request
Discuss about Ruby Star City
comment
Disclaimer
PropTiger.com is not marketing this real estate project (“Project”) and is not acting on behalf of the developer of this Project. The Project has been displayed for information purposes only. The information displayed here is not provided by the developer and hence shall not be construed as an offer for sale or an advertisement for sale by PropTiger.com or by the developer.
The information and data published herein with respect to this Project are collected from publicly available sources. PropTiger.com does not validate or confirm the veracity of the information or guarantee its authenticity or the compliance of the Project with applicable law in particular the Real Estate (Regulation and Development) Act, 2016 (“Act”). Read Disclaimer
The information and data published herein with respect to this Project are collected from publicly available sources. PropTiger.com does not validate or confirm the veracity of the information or guarantee its authenticity or the compliance of the Project with applicable law in particular the Real Estate (Regulation and Development) Act, 2016 (“Act”). Read Disclaimer