
5 Photos
840 sq ft 2 BHK 2T Apartment in S B Promoters SS Andrea
Price on request
Project Location
Pammal, Chennai
Basic Details
Amenities6
Specifications
Property Specifications
- CompletedStatus
- Sep'16Possession Start Date
- 840 sq ftSize
- 6Total Launched apartments
- Jun'15Launch Date
- ResaleAvailability
Salient Features
- Spacious properties
- Equipped with amenities like landscaped gardens, swimming pool, olympic size swimming pool, tree plantation, rainwater harvesting
- Accessibility to key landmarks
- Easily reachable schools, malls, shopping, hospitals
The construction company of SB Promoter SS Andrea apartment in Pammal region of Chennai is offering luxurious apartments. The project is in under construction stage different necessities like schools, banks, Hospitals, petrol pumps, bus stations, restaurants, higher education schools, parks, ATMs, metro stations etc all are present near the project premises. This project has many facilities like a gym, rain water harvesting system, a playground for children, a jogging track, security for 24 hour...more
Approved for Home loans from following banks
- + 3 more banksshow less
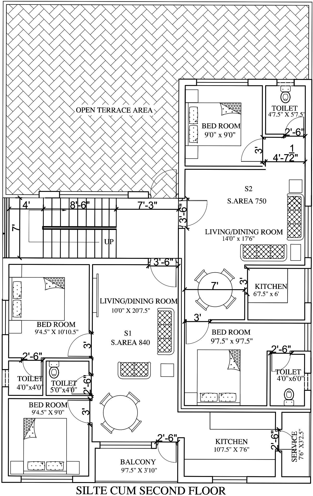
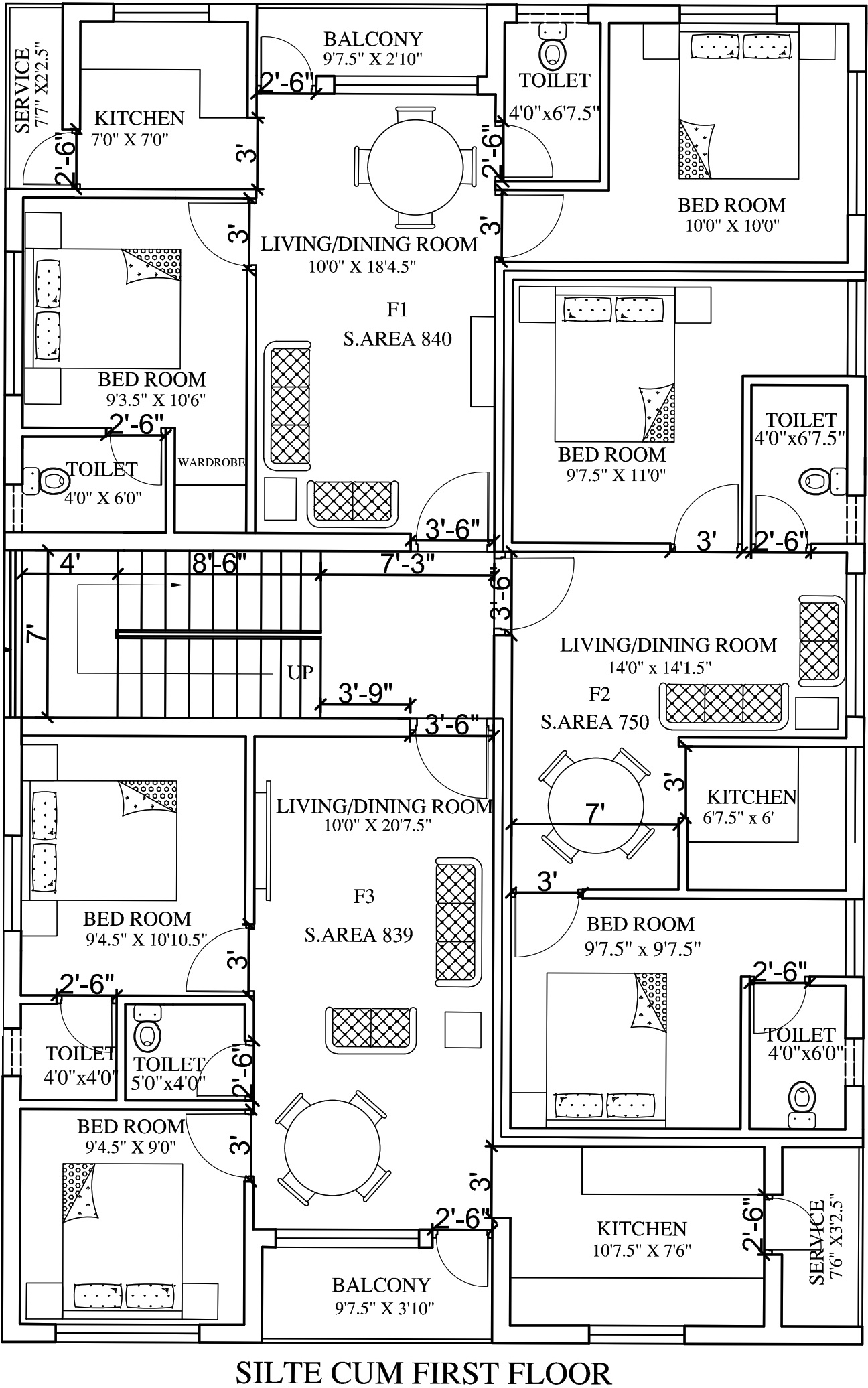
Price & Floorplan
2BHK+2T (840 sq ft)
Price On Request

2D
- 2 Bathrooms
- 1 Balcony
- 2 Bedrooms
Report Error
Gallery
SB SS AndreaElevation
SB SS AndreaFloor Plans
Other properties in S B Promoters SS Andrea
- 2 BHK
Contact NRI Helpdesk on
Whatsapp(Chat Only)
Whatsapp(Chat Only)
+91-96939-69347
Contact Helpdesk on
Whatsapp(Chat Only)
Whatsapp(Chat Only)
+91-96939-69347
About S B Promoters

- 27
Years of Experience - 11
Total Projects - 0
Ongoing Projects - RERA ID
SB Promoters is a Chennai-based infrastructure group that was incorporated in 1998 by Mr. Mohamed Ibrahim. They have developed properties including apartments, villas and condominiums with spacious balconies. The completed projects stand testimony to the quest of intelligence. It has been servicing the realty market of Chennai by developing residential and commercial spaces. They provide real estate solutions that help reduce our carbon footprint and promote an environmentally sustainable qualit... read more
Similar Properties
- PT ASSISTGL 2BHK+2Tby GL PropertiesPammal, ChennaiPrice on request
- PT ASSISTCC Builders 2BHK+2T (861 sq ft)by CC BuildersAnakaputhur, ChennaiPrice on request
- PT ASSISTGL 3BHK+3Tby GL PropertiesPammal, ChennaiPrice on request
- PT ASSISTReputed Builder 2BHK+2Tby Reputed BuilderAnakaputhur, Pammal, ChennaiPrice on request
- PT ASSISTReputed Builder 3BHK+3Tby Reputed BuilderAnakaputhur, Pammal, ChennaiPrice on request
Discuss about SB SS Andrea
comment
Disclaimer
PropTiger.com is not marketing this real estate project (“Project”) and is not acting on behalf of the developer of this Project. The Project has been displayed for information purposes only. The information displayed here is not provided by the developer and hence shall not be construed as an offer for sale or an advertisement for sale by PropTiger.com or by the developer.
The information and data published herein with respect to this Project are collected from publicly available sources. PropTiger.com does not validate or confirm the veracity of the information or guarantee its authenticity or the compliance of the Project with applicable law in particular the Real Estate (Regulation and Development) Act, 2016 (“Act”). Read Disclaimer
The information and data published herein with respect to this Project are collected from publicly available sources. PropTiger.com does not validate or confirm the veracity of the information or guarantee its authenticity or the compliance of the Project with applicable law in particular the Real Estate (Regulation and Development) Act, 2016 (“Act”). Read Disclaimer