
5 Photos
965 sq ft 2 BHK 2T Apartment in Sree Guru Foundations Galaxy
Price on request
Project Location
Thoraipakkam OMR, Chennai
Basic Details
Amenities11
Specifications
Property Specifications
- CompletedStatus
- May'16Possession Start Date
- 965 sq ftSize
- 6Total Launched apartments
- Jan'15Launch Date
- ResaleAvailability
Sree Guru Galaxy Chennai offers 2 and 3 BHK apartments to buyers The project consists of 6 units and comes with several amenities for residents including intercom facilities, power backup facilities, 24 hour security services, car parking facilities, bore well, overhead tank and more. Located at Thoraippakkam, the project is well connected to several areas like Indira Nagar, Tambaram, Kolapakkam, Mani Nagar and Theresa Nagar along with the Thoraipakkam and Sholinganallur IT corridors. Nang...more
Approved for Home loans from following banks
- + 3 more banksshow less
Payment Plans

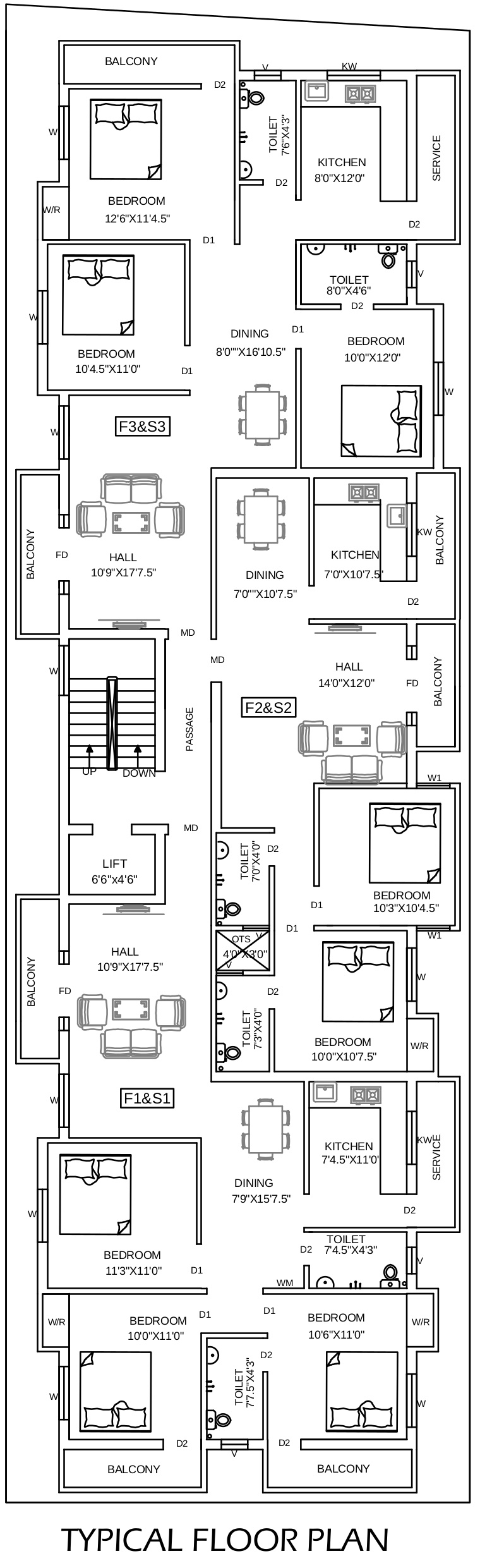
Price & Floorplan
2BHK+2T (965 sq ft)
Price On Request

2D
- 2 Bathrooms
- 2 Balconies
- 2 Bedrooms
Report Error
Gallery
Sree GalaxyElevation
Sree GalaxyFloor Plans
Sree GalaxyNeighbourhood
Other properties in Sree Guru Foundations Galaxy
- 2 BHK
- 3 BHK
Contact NRI Helpdesk on
Whatsapp(Chat Only)
Whatsapp(Chat Only)
+91-96939-69347
Contact Helpdesk on
Whatsapp(Chat Only)
Whatsapp(Chat Only)
+91-96939-69347
About Sree Guru Foundations

- 22
Years of Experience - 30
Total Projects - 4
Ongoing Projects - RERA ID
An Overview:Sree Guru Foundations Pvt Ltd is a professionally run business by team of Engineers that has been successfully operating in Chennai for the past 12 years. The Company was founded by Mr. Ganesh Krishnamoorthy who has 28 years of experience in the areas of planning and constructing houses, commercial buildings, institutions, and factory buildings in and around Chennai. Sree Guru Foundations prides itself on consistently meeting stringent quality standards and ensuring customer satisfac... read more
Similar Properties
- PT ASSISTRamaniyam 2BHK+2Tby Ramaniyam Real EstatesThoraipakkam, ChennaiPrice on request
- PT ASSISTKhurinji 2BHK+2T (950 sq ft)by Khurinji HomesThuraipakkam, ChennaiPrice on request
- PT ASSISTRamaniyam 3BHK+3Tby Ramaniyam Real EstatesThoraipakkam, ChennaiPrice on request
- PT ASSISTKhurinji 2BHK+2T (846 sq ft)by Khurinji HomesThoraipakkam, ChennaiPrice on request
- PT ASSISTCeebros 2BHK+2T (1,100 sq ft)by Ceebros Property Development3/381, Old Mahabalipuram Road, Thoraipakkam OMRPrice on request
Discuss about Sree Galaxy
comment
Disclaimer
PropTiger.com is not marketing this real estate project (“Project”) and is not acting on behalf of the developer of this Project. The Project has been displayed for information purposes only. The information displayed here is not provided by the developer and hence shall not be construed as an offer for sale or an advertisement for sale by PropTiger.com or by the developer.
The information and data published herein with respect to this Project are collected from publicly available sources. PropTiger.com does not validate or confirm the veracity of the information or guarantee its authenticity or the compliance of the Project with applicable law in particular the Real Estate (Regulation and Development) Act, 2016 (“Act”). Read Disclaimer
The information and data published herein with respect to this Project are collected from publicly available sources. PropTiger.com does not validate or confirm the veracity of the information or guarantee its authenticity or the compliance of the Project with applicable law in particular the Real Estate (Regulation and Development) Act, 2016 (“Act”). Read Disclaimer