
6 Photos
1090 sq ft 2 BHK 2T Apartment in Sree Guru Foundations Vadhana
Price on request
Project Location
Poonamallee, Chennai
Basic Details
Specifications
Property Specifications
- CompletedStatus
- Sep'14Possession Start Date
- 1090 sq ftSize
- 4Total Launched apartments
- Jun'13Launch Date
- ResaleAvailability
With pleasure we enclose the relevant details of our residential Project ‘SREE GURU VADHANA’ located at Plot No.10, Jeeva Nagar,Kattupakkam, Chennai one of the quite residential areas in City. Theproposed residential complex will have stilt covered car parking and One flat in Ground Floor, Two flats in First Floor & One Flat in Second Floor Out of which flat F-2in first floor & S-1 in second floor with private terrace have been allotted to the land owner.
Approved for Home loans from following banks
- + 3 more banksshow less
Payment Plans

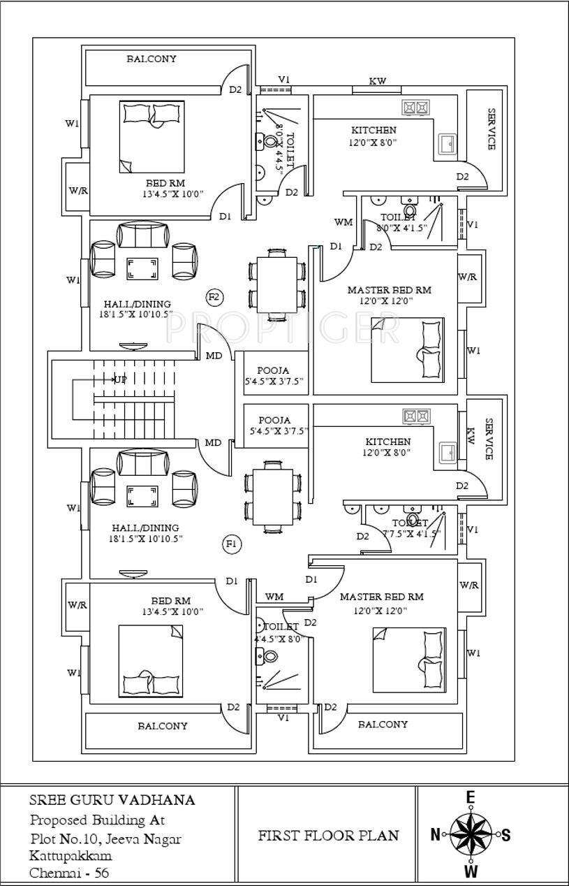
Price & Floorplan
2BHK+2T (1,090 sq ft) Pooja Room
Price On Request

2D
- 2 Bathrooms
- 2 Balconies
- 2 Bedrooms
Report Error
Gallery
Sree VadhanaElevation
Sree VadhanaFloor Plans
Sree VadhanaNeighbourhood
Other properties in Sree Guru Foundations Vadhana
- 2 BHK
- 3 BHK
Contact NRI Helpdesk on
Whatsapp(Chat Only)
Whatsapp(Chat Only)
+91-96939-69347
Contact Helpdesk on
Whatsapp(Chat Only)
Whatsapp(Chat Only)
+91-96939-69347
About Sree Guru Foundations

- 22
Years of Experience - 30
Total Projects - 4
Ongoing Projects - RERA ID
An Overview:Sree Guru Foundations Pvt Ltd is a professionally run business by team of Engineers that has been successfully operating in Chennai for the past 12 years. The Company was founded by Mr. Ganesh Krishnamoorthy who has 28 years of experience in the areas of planning and constructing houses, commercial buildings, institutions, and factory buildings in and around Chennai. Sree Guru Foundations prides itself on consistently meeting stringent quality standards and ensuring customer satisfac... read more
Similar Properties
- PT ASSISTQueens 3BHK+2T (1,155 sq ft)by QueensEVP Park Avenue, Ayyappanthangal, ChennaiPrice on request
- PT ASSISTQueens 2BHK+2T (1,000 sq ft)by QueensEVP Park Avenue, Ayyappanthangal, ChennaiPrice on request
- PT ASSISTACE 2BHK+2T (990 sq ft)by ACEKattupakkam, ChennnaiPrice on request
- PT ASSISTDakshin 2BHK+2Tby Dakshin ConstructionPlot No.10,Sripadmavathi Nagar Iyyapanthangal, ChennaiPrice on request
- PT ASSISTDakshin 3BHK+3Tby Dakshin ConstructionPlot No.10,Sripadmavathi Nagar Iyyapanthangal, ChennaiPrice on request
Discuss about Sree Vadhana
comment
Disclaimer
PropTiger.com is not marketing this real estate project (“Project”) and is not acting on behalf of the developer of this Project. The Project has been displayed for information purposes only. The information displayed here is not provided by the developer and hence shall not be construed as an offer for sale or an advertisement for sale by PropTiger.com or by the developer.
The information and data published herein with respect to this Project are collected from publicly available sources. PropTiger.com does not validate or confirm the veracity of the information or guarantee its authenticity or the compliance of the Project with applicable law in particular the Real Estate (Regulation and Development) Act, 2016 (“Act”). Read Disclaimer
The information and data published herein with respect to this Project are collected from publicly available sources. PropTiger.com does not validate or confirm the veracity of the information or guarantee its authenticity or the compliance of the Project with applicable law in particular the Real Estate (Regulation and Development) Act, 2016 (“Act”). Read Disclaimer