
5 Photos
1413 sq ft 3 BHK 2T Apartment in Sri Suprabhatham Builders Sip Colony
Price on request
Project Location
Nanganallur, Chennai
Basic Details
Amenities4
Specifications
Property Specifications
- CompletedStatus
- Jan'14Possession Start Date
- 1413 sq ftSize
- 10Total Launched apartments
- Dec'12Launch Date
- ResaleAvailability
It offers 2, 3 BHK Apartment in GST. The project is Completed project and possession in Feb 14. Among the many luxurious amenities that the project boasts are Children's play area, Water Tank, Individual 3Phase Power Connection, Individual Covered Carparking etc.
Approved for Home loans from following banks
- + 3 more banksshow less
Price & Floorplan
3BHK+2T (1,413 sq ft)
Price On Request

2D
- 2 Bathrooms
- 2 Balconies
- 3 Bedrooms
Report Error
Gallery
Sri Suprabhatham Sip ColonyElevation
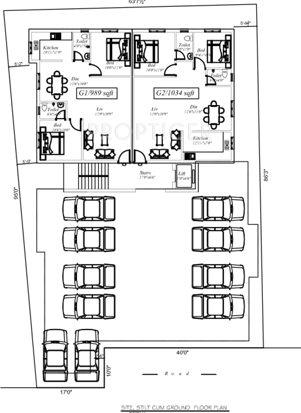
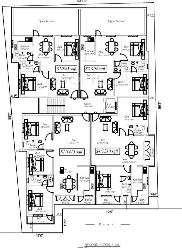
Sri Suprabhatham Sip ColonyFloor Plans
Other properties in Sri Suprabhatham Builders Sip Colony
- 2 BHK
- 3 BHK
Contact NRI Helpdesk on
Whatsapp(Chat Only)
Whatsapp(Chat Only)
+91-96939-69347
Contact Helpdesk on
Whatsapp(Chat Only)
Whatsapp(Chat Only)
+91-96939-69347
About Sri Suprabhatham Builders

- 24
Years of Experience - 17
Total Projects - 0
Ongoing Projects - RERA ID
An Overview Sri Suprabhatam Builders is a reputed real estate developer based in Chennai. The company has 15 years of industry experience and engages in development of civil constructions, turnkey industrial projects, or real estate development. Unique Selling Points The major USP of the company includes adherence to highest quality standards, customer satisfaction as well as timely delivery of projects. Landmark Projects The company offers property for sale in Sri Suprabhatam Builders, apartmen... read more
Similar Properties
- PT ASSISTKG 3BHK+3T (1,515 sq ft)by KG Builders1st Main Rd, Andal Nagar, VelacheryPrice on request
- PT ASSISTAntony 3BHK+3Tby Antony AssociatesVelachery,ChennaiPrice on request
- PT ASSISTAntony 2BHK+2Tby Antony AssociatesVelachery,ChennaiPrice on request
- PT ASSISTNatwest 2BHK+2Tby Natwest4th Main Road, AGS Colony, Velachery, ChennaiPrice on request
- PT ASSISTNatwest 1BHK+1Tby Natwest4th Main Road, AGS Colony, Velachery, ChennaiPrice on request
Discuss about Sri Suprabhatham Sip Colony
comment
Disclaimer
PropTiger.com is not marketing this real estate project (“Project”) and is not acting on behalf of the developer of this Project. The Project has been displayed for information purposes only. The information displayed here is not provided by the developer and hence shall not be construed as an offer for sale or an advertisement for sale by PropTiger.com or by the developer.
The information and data published herein with respect to this Project are collected from publicly available sources. PropTiger.com does not validate or confirm the veracity of the information or guarantee its authenticity or the compliance of the Project with applicable law in particular the Real Estate (Regulation and Development) Act, 2016 (“Act”). Read Disclaimer
The information and data published herein with respect to this Project are collected from publicly available sources. PropTiger.com does not validate or confirm the veracity of the information or guarantee its authenticity or the compliance of the Project with applicable law in particular the Real Estate (Regulation and Development) Act, 2016 (“Act”). Read Disclaimer