
5 Photos
PROJECT RERA ID : Rera Not Required
1037 sq ft 2 BHK 2T Apartment in Vishnu Foundation Dharshini Homes
₹ 49.78 L
See inclusions
Project Location
Medavakkam, Chennai
Basic Details
Amenities7
Specifications
Property Specifications
- Under ConstructionStatus
- Aug'21Possession Start Date
- 1037 sq ftSize
- 1.5 AcresTotal Area
- 8Total Launched apartments
- New and ResaleAvailability
Salient Features
- 700 Mtrs From Tambaram Velachery Main Road
- Good Living Area, Very Close To School And Hospitals
Located in Medavakkam, Chennai, Dharshini Homes is a premium housing project launched by Vishnu Foundation. The project offers Apartment in 1, 2, 3 BHK configurations available from 446 sqft to 1160 sqft. The project is Under Construction project and possession in Aug 21. Dharshini Homes has many amenities, such as 24X7 Water Supply, CCTV, Rain Water Harvesting, 24 X 7 Security, Closed Car Parking etc.
Approved for Home loans from following banks
Price & Floorplan
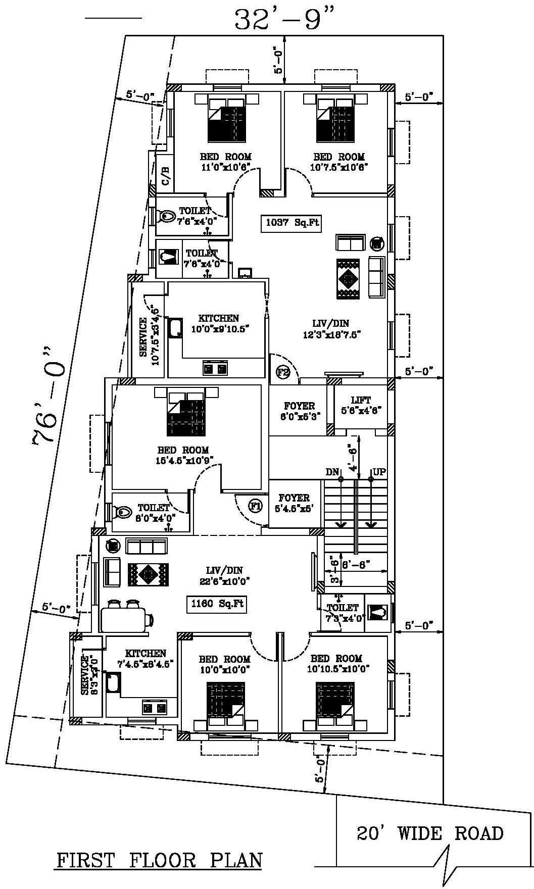
2BHK+2T (1,037 sq ft)
₹ 49.78 L
See Price Inclusions

2D
- 2 Bathrooms
- 2 Bedrooms
Report Error
Gallery
Vishnu Dharshini HomesElevation
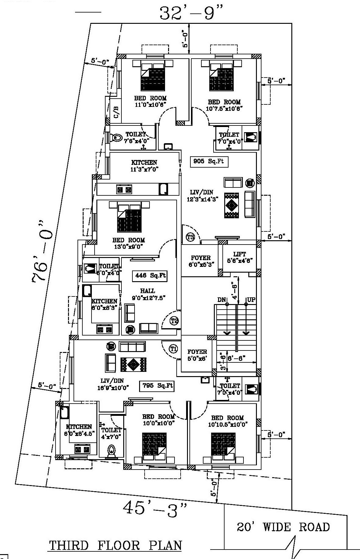
Vishnu Dharshini HomesFloor Plans
Other properties in Vishnu Foundation Dharshini Homes
- 1 BHK
- 2 BHK
- 3 BHK
Contact NRI Helpdesk on
Whatsapp(Chat Only)
Whatsapp(Chat Only)
+91-96939-69347
Contact Helpdesk on
Whatsapp(Chat Only)
Whatsapp(Chat Only)
+91-96939-69347
About Vishnu Foundation

- 81
Total Projects - 28
Ongoing Projects - RERA ID
Vishnu Foundations is a real estate development company in Chennai. It is committed to providing spectacular projects that deliver the best value for customer’s money. The developer aims to transform the property dreams of the customers into reality. It ensures that its projects emanate meticulous planning, quality material, and excellent workmanship. The company strives to be a front runner in the realm of real estate development by providing feature-rich projects that offer comforta... read more
Similar Properties
- PT ASSISTCrystal 3BHK+2T (1,020 sq ft) + Pooja Roomby Crystal Reef Luxury HomesPlot. No.10, Seetharaman Street, Selvaganapathy Nagar, Vadakkupattu Main Road, Medavakkam₹ 50.39 L
- PT ASSISTCrystal 2BHK+2T (940 sq ft)by Crystal Reef Luxury HomesPlot. No.10, Seetharaman Street, Selvaganapathy Nagar, Vadakkupattu Main Road, Medavakkam₹ 46.44 L
- PT ASSISTAKB 2BHK+2T (950 sq ft)by AKB Developers And PromotersParvathy Nagar North, Yeswanth Nagar, Selaiyur₹ 47.50 L
- PT ASSISTAKB 3BHK+3T (1,150 sq ft)by AKB Developers And PromotersParvathy Nagar North, Yeswanth Nagar, Selaiyur₹ 57.50 L
- PT ASSISTMantra 2BHK+2T (1,125 sq ft)by Mantra ProjectsMedavakkam₹ 57.38 L
Discuss about Vishnu Dharshini Homes
comment
Disclaimer
PropTiger.com is not marketing this real estate project (“Project”) and is not acting on behalf of the developer of this Project. The Project has been displayed for information purposes only. The information displayed here is not provided by the developer and hence shall not be construed as an offer for sale or an advertisement for sale by PropTiger.com or by the developer.
The information and data published herein with respect to this Project are collected from publicly available sources. PropTiger.com does not validate or confirm the veracity of the information or guarantee its authenticity or the compliance of the Project with applicable law in particular the Real Estate (Regulation and Development) Act, 2016 (“Act”). Read Disclaimer
The information and data published herein with respect to this Project are collected from publicly available sources. PropTiger.com does not validate or confirm the veracity of the information or guarantee its authenticity or the compliance of the Project with applicable law in particular the Real Estate (Regulation and Development) Act, 2016 (“Act”). Read Disclaimer