
7 Photos
1000 sq ft 2 BHK 2T Apartment in Ompee Homes 15by Ompee
Price on request
Project Location
Palam Vihar Extension, Gurgaon
Basic Details
Amenities11
Specifications
Property Specifications
- CompletedStatus
- Mar'15Possession Start Date
- 1000 sq ftSize
- 16Total Launched apartments
- Jul'14Launch Date
- ResaleAvailability
Ompee Homes 15 is located in the developing area of New Palam Vihar in Gurgaon. This project offers decent connectivity to several shopping malls, schools, railway stations, hospitals and the airport. Residents can easily access the Ansal Plaza, Spanish Court and Palam Triangle and shopping destinations in addition to several temples and ATMs in the locality. The project consists of 16 units with sizes ranging from 650 and 1000 sq.ft. Apartments are priced at INR 17 lakhs only. Situated at...more
Payment Plans

Price & Floorplan
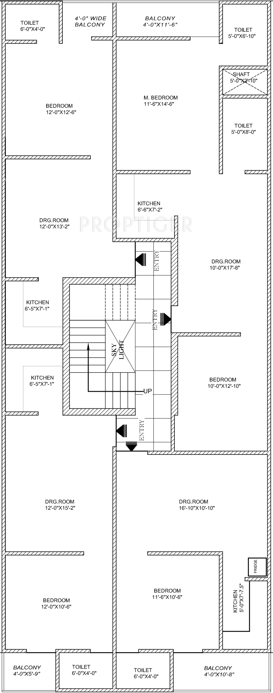
2BHK+2T (1,000 sq ft)
Price On Request

2D
- 2 Bathrooms
- 1 Balcony
- 2 Bedrooms
Report Error
Gallery
Ompee Homes 15Elevation
Ompee Homes 15Floor Plans
Other properties in Ompee Homes 15
- 1 BHK
- 2 BHK
Contact NRI Helpdesk on
Whatsapp(Chat Only)
Whatsapp(Chat Only)
+91-96939-69347
Contact Helpdesk on
Whatsapp(Chat Only)
Whatsapp(Chat Only)
+91-96939-69347
About Ompee

- 17
Total Projects - 2
Ongoing Projects - RERA ID
Ompee Group is a premier real estate organisation that has earned repute for delivering high-quality real estate projects. An ISO 9001:2000 certified company, the list of property by Ompee Group includes multiple residential projects in Gurgaon. Unique Selling Point The group offers innovative and cost-effective real estate solutions. It also offers proactive and user-friendly services. It follows a policy of extensive training, rigorous supervision, efficient administration and prompt responses... read more
Similar Properties
- PT ASSISTOmpee 2BHK+2T (1,000 sq ft)by OmpeePalam Vihar Extension, Near Sector 15Price on request
- PT ASSISTLotus 2BHK+2T (710 sq ft)by Lotus RealtechNear Sai Kunj, Block D, New Palam Vihar Phase 3, Sector 111Price on request
- PT ASSISTLotus 1BHK+1T (418 sq ft)by Lotus RealtechNear Sai Kunj, Block D, New Palam Vihar Phase 3, Sector 111Price on request
- PT ASSISTRaheja 1BHK+1T (1,045 sq ft) Study Roomby Raheja DeveloperSector 109Price on request
- PT ASSISTBrisk 3BHK 3T (1194 sq ft)by BriskSector 109Price on request
Discuss about Ompee Homes 15
comment
Disclaimer
PropTiger.com is not marketing this real estate project (“Project”) and is not acting on behalf of the developer of this Project. The Project has been displayed for information purposes only. The information displayed here is not provided by the developer and hence shall not be construed as an offer for sale or an advertisement for sale by PropTiger.com or by the developer.
The information and data published herein with respect to this Project are collected from publicly available sources. PropTiger.com does not validate or confirm the veracity of the information or guarantee its authenticity or the compliance of the Project with applicable law in particular the Real Estate (Regulation and Development) Act, 2016 (“Act”). Read Disclaimer
The information and data published herein with respect to this Project are collected from publicly available sources. PropTiger.com does not validate or confirm the veracity of the information or guarantee its authenticity or the compliance of the Project with applicable law in particular the Real Estate (Regulation and Development) Act, 2016 (“Act”). Read Disclaimer