
7 Photos
963 sq ft 2 BHK 2T Apartment in Elite s The Square
Price on request
Project Location
Kukatpally, Hyderabad
Basic Details
Amenities17
Specifications
Property Specifications
- CompletedStatus
- Jun'14Possession Start Date
- 963 sq ftSize
- 1 AcresTotal Area
- 50Total Launched apartments
- Dec'11Launch Date
- ResaleAvailability
Salient Features
- 3 open side properties
- Easily reachable cineplex
- 1 min driving distance from icici bank 4 minutes reliance fresh
- 3 min distance from pochamma temple
Elite Projects is one of the reputed property developer and is extremely versatile to developing property suiting the ever evolving and dynamic desires of the real estate market.Elite Projects has introduced its residential project “The Square”, that is a benchmark in property market and strategically nestled at Madinaguda,Near Chandanagar,Hyderabad.
Approved for Home loans from following banks
- + 3 more banksshow less
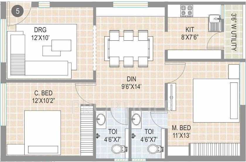
Price & Floorplan
2BHK+2T (963 sq ft)
Price On Request

2D
- 2 Bathrooms
- 2 Bedrooms
Report Error
Gallery
Elite The SquareElevation
Elite The SquareFloor Plans
Elite The SquareNeighbourhood
Other properties in Elite Projects The Square
- 2 BHK
- 3 BHK
Contact NRI Helpdesk on
Whatsapp(Chat Only)
Whatsapp(Chat Only)
+91-96939-69347
Contact Helpdesk on
Whatsapp(Chat Only)
Whatsapp(Chat Only)
+91-96939-69347
About Elite Projects

- 19
Years of Experience - 1
Total Projects - 0
Ongoing Projects - RERA ID
Similar Properties
- PT ASSISTJaya Bharathi 2BHK+2Tby Jaya Bharathi Constructions Pvt LtdMiyapur, HyderabadPrice on request
- PT ASSISTJaya Bharathi 3BHK+3Tby Jaya Bharathi Constructions Pvt LtdMiyapur, HyderabadPrice on request
- PT ASSISTBR 1BHK+1Tby BR ConstructionsWIDIA Colony, Near Miyapur, HyderabadPrice on request
- PT ASSISTBR 2BHK+2Tby BR ConstructionsWIDIA Colony, Near Miyapur, HyderabadPrice on request
- PT ASSISTBR 2BHK+2Tby BR ConstructionsMiyapur, Hyderabad.Price on request
Discuss about Elite The Square
comment
Disclaimer
PropTiger.com is not marketing this real estate project (“Project”) and is not acting on behalf of the developer of this Project. The Project has been displayed for information purposes only. The information displayed here is not provided by the developer and hence shall not be construed as an offer for sale or an advertisement for sale by PropTiger.com or by the developer.
The information and data published herein with respect to this Project are collected from publicly available sources. PropTiger.com does not validate or confirm the veracity of the information or guarantee its authenticity or the compliance of the Project with applicable law in particular the Real Estate (Regulation and Development) Act, 2016 (“Act”). Read Disclaimer
The information and data published herein with respect to this Project are collected from publicly available sources. PropTiger.com does not validate or confirm the veracity of the information or guarantee its authenticity or the compliance of the Project with applicable law in particular the Real Estate (Regulation and Development) Act, 2016 (“Act”). Read Disclaimer