
13 Photos
Loharuka Green Leaf
Price on request
Builder Price
2, 3, 4 BHK
Apartment
870 - 1,601 sq ft
Builtup area
Project Location
Baguihati, Kolkata
Overview
- Dec'15Possession Start Date
- CompletedStatus
- 75Total Launched apartments
- Jan'13Launch Date
- ResaleAvailability
More about Loharuka Green Leaf
Loharuka Group Green Leaf is a housing unit based in Baguihati, Kolkata. Under construction, it offers 2, 3 and 4 BHK apartments, Various amenities like gymnasium, children's playground and intercom are offered. Loharuka Group is a Kolkata based real estate firm. Baguihati is situated on VIP Road in northeastern Kolkata. It has a distance of 7.9 kilometers from Kolkata Station. The area abounds in good schools (Baguihati Gurukul), hospitals (Apollo) and shopping malls (Big Bazaar).
Approved for Home loans from following banks
- + 2 more banksshow less
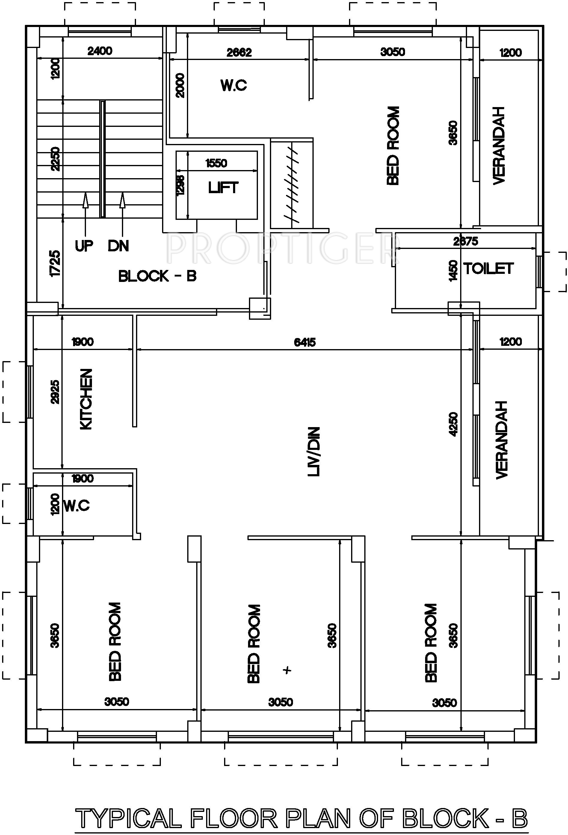
Loharuka Green Leaf Floor Plans
- 2 BHK
- 3 BHK
- 4 BHK
Floor Plan | Area | Builder Price |
---|---|---|
![]() | 870 sq ft (2BHK+1T + Pooja Room) | - |
Report Error
Our Picks
- PriceConfigurationPossession
- Current ProjectLoharuka Green Leafby Loharuka GroupBaguihati, KolkataData Not Available2,3,4 BHK Apartment870 - 1,601 sq ftDec '15
- RecommendedThe Varandaby Purti Npr Developers LLPLake Town, Kolkata₹ 1.97 Cr - ₹ 4.27 Cr3,4,5 BHK Apartment1,883 - 3,347 sq ftMay '29
- RecommendedRajarhat Gopalpurby Reputed DeveloperRajarhat, Kolkata₹ 92.58 L - ₹ 1.30 Cr3,4 BHK Apartment1,277 - 1,788 sq ftJun '29
Loharuka Green Leaf Amenities
- Gymnasium
- Children's play area
- Intercom
- 24 X 7 Security
- Power Backup
- 24X7 Water Supply
- Community Hall
- Library
Loharuka Green Leaf Specifications
Doors
Internal:
Decorative with Wooden Frame
Main:
Wooden Frame
Flooring
Balcony:
Ceramic Tiles
Kitchen:
Vitrified Tiles
Living/Dining:
Vitrified Tiles
Master Bedroom:
Vitrified Tiles
Other Bedroom:
Vitrified Tiles
Toilets:
Ceramic Tiles
Gallery
Loharuka Green LeafElevation
Loharuka Green LeafFloor Plans
Loharuka Green LeafNeighbourhood
Payment Plans

Contact NRI Helpdesk on
Whatsapp(Chat Only)
Whatsapp(Chat Only)
+91-96939-69347
Contact Helpdesk on
Whatsapp(Chat Only)
Whatsapp(Chat Only)
+91-96939-69347
About Loharuka Group

- 31
Years of Experience - 25
Total Projects - 4
Ongoing Projects - RERA ID
Loharuka Group is one of the leading property companies in Kolkata with presence in several Indian cities. The group offers services to the hospitality and real estate infrastructure sectors. Loharuka Builders delivers a variety of projects in the residential and commercial segments. Timely delivery of projects and including the latest facilities are reasons for many customers trusting Loharuka Developers. The real estate company has developed many premium residential projects in different parts... read more
Similar Projects
- PT ASSISTPurti The Varandaby Purti Npr Developers LLPLake Town, Kolkata₹ 1.88 Cr - ₹ 3.70 Cr
- PT ASSISTRajarhat Gopalpurby Reputed DeveloperRajarhat, Kolkata₹ 92.58 L - ₹ 1.30 Cr
- PT ASSISTAmbey Gatewayby Ambey GroupNew Town, Kolkata₹ 91.52 L - ₹ 2.58 Cr
- PT ASSISTLoharuka Urban Greens Phase II Aby Loharuka GroupRajarhat, Kolkata₹ 69.59 L - ₹ 1.16 Cr
- PT ASSISTLuxury Hi Rise Opposite Sector Vby Reputed DeveloperSalt Lake City, Kolkata₹ 1.78 Cr - ₹ 2.85 Cr
Discuss about Loharuka Green Leaf
comment
Disclaimer
PropTiger.com is not marketing this real estate project (“Project”) and is not acting on behalf of the developer of this Project. The Project has been displayed for information purposes only. The information displayed here is not provided by the developer and hence shall not be construed as an offer for sale or an advertisement for sale by PropTiger.com or by the developer.
The information and data published herein with respect to this Project are collected from publicly available sources. PropTiger.com does not validate or confirm the veracity of the information or guarantee its authenticity or the compliance of the Project with applicable law in particular the Real Estate (Regulation and Development) Act, 2016 (“Act”). Read Disclaimer
The information and data published herein with respect to this Project are collected from publicly available sources. PropTiger.com does not validate or confirm the veracity of the information or guarantee its authenticity or the compliance of the Project with applicable law in particular the Real Estate (Regulation and Development) Act, 2016 (“Act”). Read Disclaimer