
12 Photos
780 sq ft 2 BHK 1T Apartment in Biswas Enterprise Jeet Galaxy
Price on request
Project Location
Nayabad, Kolkata
Basic Details
Amenities18
Specifications
Property Specifications
- CompletedStatus
- Nov'17Possession Start Date
- 780 sq ftSize
- 1 AcresTotal Area
- 36Total Launched apartments
- Dec'14Launch Date
- ResaleAvailability
Salient Features
- Spacious properties
- Children play area to impart quality lifestyle
- Accessibility to key landmarks
- Accessible to schools, malls, shopping, hospitals
Launched by Biswas, Jeet Galaxy, is a premium housing project located at Nayabad in Kolkata. Offering 2, 3 BHK Apartment in Kolkata South are available from 780 sqft to 1176 sqft. This project hosts amenities like Garage , Power Backup, Gymnasium, , Intercom etc. Available at attractive price points starting at @Rs 3,500 per sqft, the Apartment are available for sale from Rs 28.74 lacs to Rs 41.16 lacs. The project is Under Construction project and possession in Oct 17.
Approved for Home loans from following banks
- + 2 more banksshow less
Payment Plans

Price & Floorplan
2BHK+1T (780 sq ft)
Price On Request

2D
- 1 Bathroom
- 2 Bedrooms
Report Error
Gallery
Biswas Enterprise Jeet GalaxyElevation
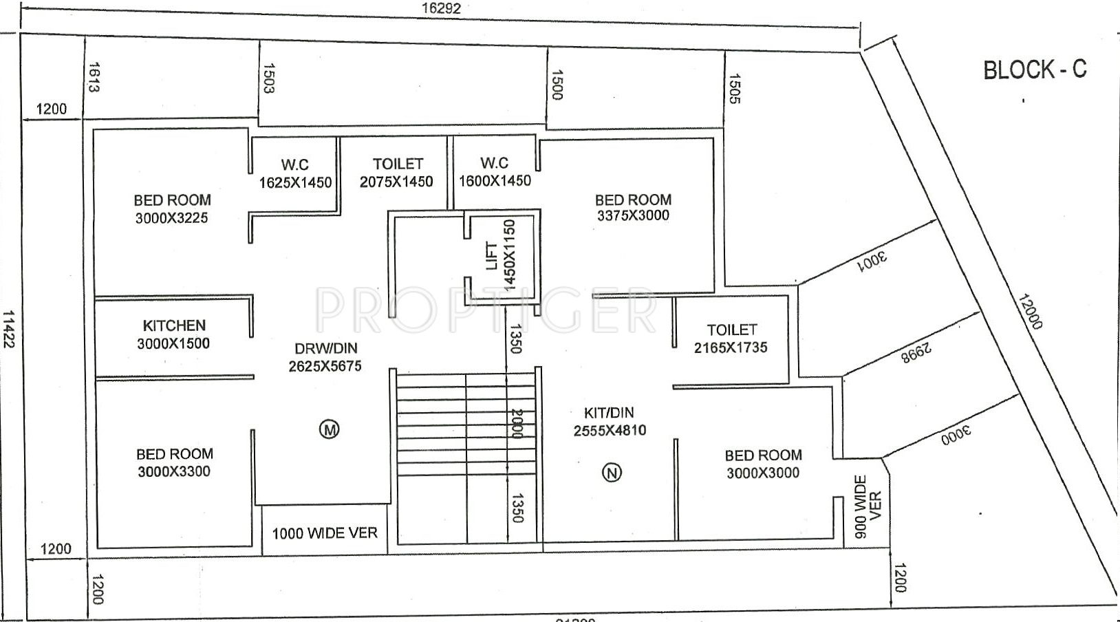
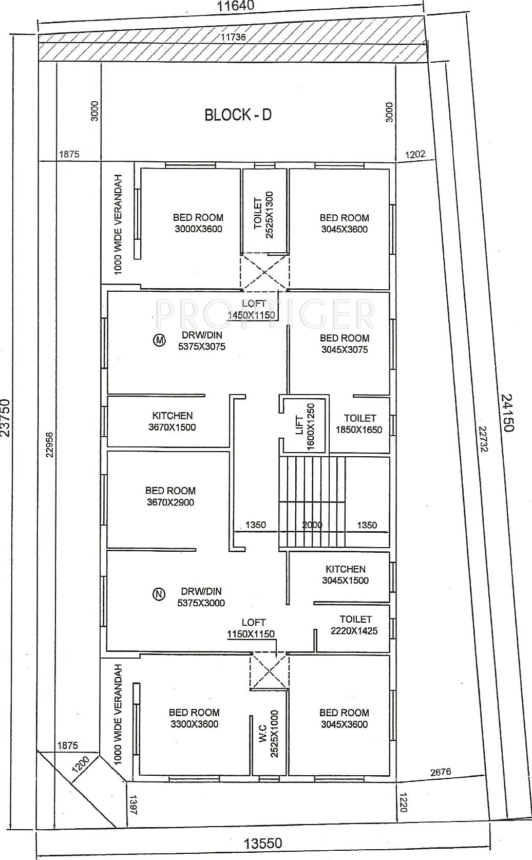
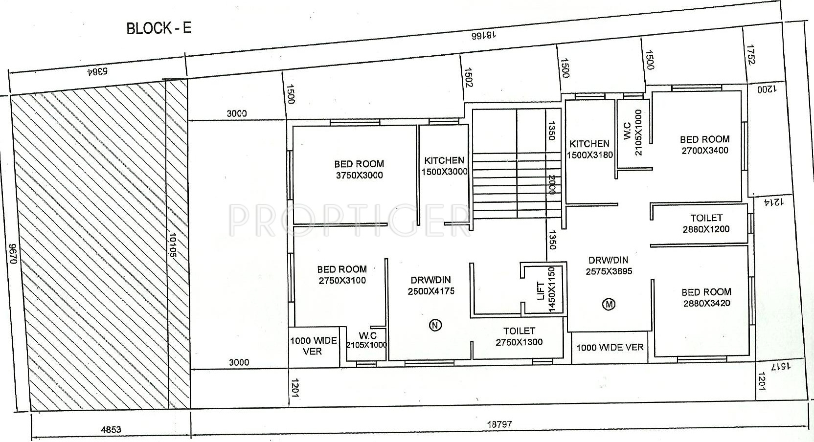
Biswas Enterprise Jeet GalaxyFloor Plans
Biswas Enterprise Jeet GalaxyNeighbourhood
Other properties in Biswas Enterprise Jeet Galaxy
- 2 BHK
- 3 BHK
Contact NRI Helpdesk on
Whatsapp(Chat Only)
Whatsapp(Chat Only)
+91-96939-69347
Contact Helpdesk on
Whatsapp(Chat Only)
Whatsapp(Chat Only)
+91-96939-69347
About Biswas Enterprise
Biswas Enterprise
- 18
Total Projects - 1
Ongoing Projects - RERA ID
Similar Properties
- PT ASSISTRoytech 2BHK+2Tby Roytech Group1333, NayabadPrice on request
- PT ASSISTJeet 2BHK+1T (825 sq ft)by Jeet NirmanNayabad, KolkataPrice on request
- PT ASSISTEden 2BHK+2T (826 sq ft)by Eden GroupEM Bypass, KolkataPrice on request
- PT ASSISTMayfair 3BHK+3Tby MayfairNayabadPrice on request
- PT ASSISTEden 2BHK+2T (845 sq ft)by Eden GroupPancha Sayar, E.M.Bypass, KolkataPrice on request
Discuss about Biswas Enterprise Jeet Galaxy
comment
Disclaimer
PropTiger.com is not marketing this real estate project (“Project”) and is not acting on behalf of the developer of this Project. The Project has been displayed for information purposes only. The information displayed here is not provided by the developer and hence shall not be construed as an offer for sale or an advertisement for sale by PropTiger.com or by the developer.
The information and data published herein with respect to this Project are collected from publicly available sources. PropTiger.com does not validate or confirm the veracity of the information or guarantee its authenticity or the compliance of the Project with applicable law in particular the Real Estate (Regulation and Development) Act, 2016 (“Act”). Read Disclaimer
The information and data published herein with respect to this Project are collected from publicly available sources. PropTiger.com does not validate or confirm the veracity of the information or guarantee its authenticity or the compliance of the Project with applicable law in particular the Real Estate (Regulation and Development) Act, 2016 (“Act”). Read Disclaimer