
13 Photos
2462 sq ft 4 BHK 3T Apartment in Shivom Aquilaby Shivom
₹ 1.66 Cr
See inclusions
Project Location
Tiljala, Kolkata
Basic Details
Amenities14
Specifications
Property Specifications
- CompletedStatus
- Jun'15Possession Start Date
- 2462 sq ftSize
- 22Total Launched apartments
- Oct'12Launch Date
- New and ResaleAvailability
Salient Features
- 3 open side properties, spacious properties, luxurious properties
- Modern amenities like gated community, community hall and center
- Shivam aquila has a total of 1 towers
- The construction is of 13 floors
- An accommodation of 24 units has been provided
- The project offers apartment with perfect combination of contemporary architecture and features to provide comfortable living
Shivam Aquila in Tiljala;Kolkata is offering luxurious apartments. The apartments are under construction and the apartments are available through the builder as well as via resale. The complex is in close vicinity to schools, chemist shops, grocery stores, banks, restaurants, train stations, metro stations, parks, play schools, ATM, bus stations, shopping malls, hospitals and entertainment facilities, making it an ideal home for a relaxed lifestyle. Several amenities are proposed for the communi...more
Approved for Home loans from following banks
Price & Floorplan
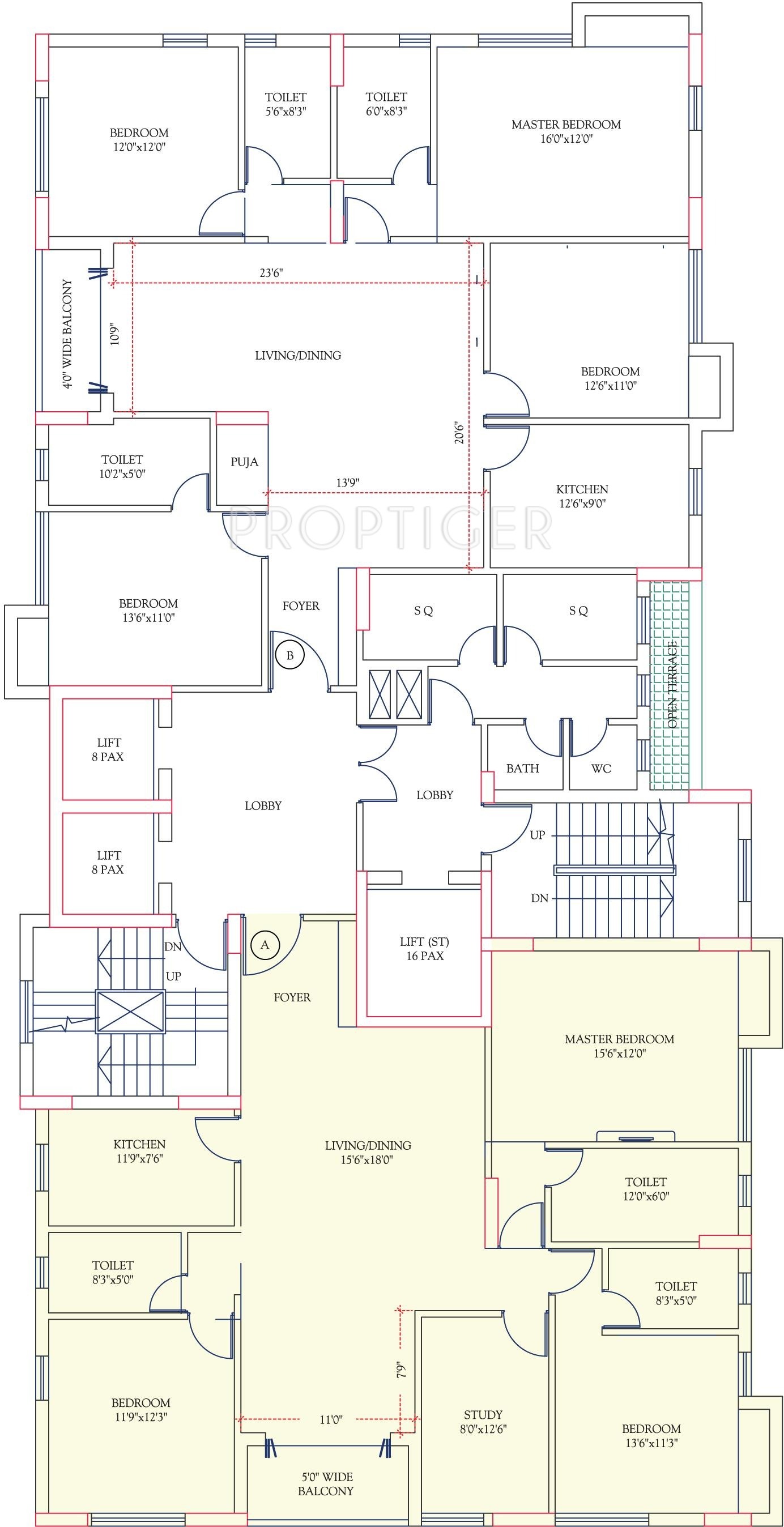
4BHK+3T (2,462 sq ft)
₹ 1.66 Cr
See Price Inclusions

- 3 Bathrooms
- 4 Bedrooms
Report Error
Gallery
Shivom AquilaElevation
Shivom AquilaAmenities
Shivom AquilaFloor Plans
Shivom AquilaNeighbourhood
Shivom AquilaOthers
Other properties in Shivom Aquila
- 3 BHK
- 4 BHK
Contact NRI Helpdesk on
Whatsapp(Chat Only)
Whatsapp(Chat Only)
+91-96939-69347
Contact Helpdesk on
Whatsapp(Chat Only)
Whatsapp(Chat Only)
+91-96939-69347
About Shivom

- 12
Total Projects - 3
Ongoing Projects - RERA ID
Kolkata-based Shivom Realty [Mani Enclave] is an ISO 9001:2008 certified brand that is engaged in diverse businesses, namely real estate, education, and chemicals. The foundation of the company was laid over a decade ago by Mr. Vikramchand Agarwal. Through a decade of ceaseless innovation and a commitment to excellence, it has contributed significantly to the changing skyline of Kolkata. It is committed to delivering homes of exceptional quality that meet the expectations of the customers. It st... read more
Similar Properties
- PT ASSISTBGA 2BHK+2Tby BGA RealtorsKasba, Kolkata.Price on request
- PT ASSISTDiamond 4BHK+4T (2,400 sq ft)by Diamond GroupChristopher Road, Tangra, KolkataPrice on request
- PT ASSISTArihant 4BHK+3T (2,402 sq ft)by Arihant GroupArihant Viento, 55, Matheswartala Road, TangraPrice on request
- PT ASSISTEden 3BHK+3T (2,450 sq ft)by Eden Group16/1, Palm Ave, Ballygunge Park, BallygungePrice on request
- PT ASSISTOrbit 4BHK+4T (2,700 sq ft)by Orbit Group30, Bondel Road, BallygungePrice on request
Discuss about Shivom Aquila
comment
Disclaimer
PropTiger.com is not marketing this real estate project (“Project”) and is not acting on behalf of the developer of this Project. The Project has been displayed for information purposes only. The information displayed here is not provided by the developer and hence shall not be construed as an offer for sale or an advertisement for sale by PropTiger.com or by the developer.
The information and data published herein with respect to this Project are collected from publicly available sources. PropTiger.com does not validate or confirm the veracity of the information or guarantee its authenticity or the compliance of the Project with applicable law in particular the Real Estate (Regulation and Development) Act, 2016 (“Act”). Read Disclaimer
The information and data published herein with respect to this Project are collected from publicly available sources. PropTiger.com does not validate or confirm the veracity of the information or guarantee its authenticity or the compliance of the Project with applicable law in particular the Real Estate (Regulation and Development) Act, 2016 (“Act”). Read Disclaimer