
5 Photos
1070 sq ft 3 BHK 2T Apartment in SY Marketing Gamma Homes IIby SY Marketing
Price on request
Project Location
Madurdaha Hussainpur, Kolkata
Basic Details
Amenities7
Specifications
Property Specifications
- CompletedStatus
- Feb'16Possession Start Date
- 1070 sq ftSize
- 8Total Launched apartments
- Nov'14Launch Date
- ResaleAvailability
Gamma Homes II launched by SY Marketing is located at Haltu in Kolkata. A well-designed housing project offers 3 BHK apartments. These apartments are available only through the developer. It comes with amenities like an intercom facility, a 24x7 security system, a power backup provision, an elevator and a closed car parking area. This residential area hosts offices of some renowned companies and is well-linked to the other parts of the city via a well-integrated system of public transport that c...more
Approved for Home loans from following banks
- + 2 more banksshow less
Price & Floorplan
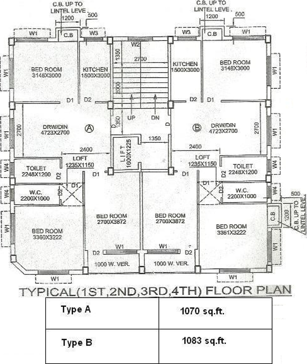
3BHK+2T (1,070 sq ft)
Price On Request

2D
- 2 Bathrooms
- 3 Bedrooms
Report Error
Gallery
SY Gamma Homes IIElevation
SY Gamma Homes IIFloor Plans
Other properties in SY Marketing Gamma Homes II
- 3 BHK
Contact NRI Helpdesk on
Whatsapp(Chat Only)
Whatsapp(Chat Only)
+91-96939-69347
Contact Helpdesk on
Whatsapp(Chat Only)
Whatsapp(Chat Only)
+91-96939-69347
About SY Marketing

- 28
Years of Experience - 5
Total Projects - 0
Ongoing Projects - RERA ID
SY Marketing Services Pvt. Ltd. is a Kolkata based real estate firm. Progressive and dynamic, it is one of the largest vertically integrated real estate service providers in Kolkata dealing with residential and commercial properties. It is a one stop shop that provides property solutions starting from selecting a property to getting it financed from leading financial institutions & banks all under one roof. SY Marketing Services Pvt. Ltd. is promoted by Mr. Lalit Baid and Mr. Palash Mazumder... read more
Similar Properties
- PT ASSISTTrans 3BHK+2T (1,070 sq ft)by Trans1509, Madurdaha, Hussainpur.Price on request
- PT ASSISTDeeshari 3BHK+2T (1,078 sq ft)by Deeshari GroupMadurdaha Hussainpur, Kolkata.Price on request
- PT ASSISTDeeshari 3BHK+3T (1,060 sq ft)by Deeshari GroupMadurdaha,EM Bypass, Kolkata.Price on request
- PT ASSISTJeet 3BHK+2T (1,049 sq ft)by Jeet NirmanPremises No- 600, Kalikapur, Haltu, KolkataPrice on request
- PT ASSISTBengal Peerless 3BHK+3T (1,120 sq ft)by Bengal Peerless HousingEM Bypass, Haltu, KolkataPrice on request
Discuss about SY Gamma Homes II
comment
Disclaimer
PropTiger.com is not marketing this real estate project (“Project”) and is not acting on behalf of the developer of this Project. The Project has been displayed for information purposes only. The information displayed here is not provided by the developer and hence shall not be construed as an offer for sale or an advertisement for sale by PropTiger.com or by the developer.
The information and data published herein with respect to this Project are collected from publicly available sources. PropTiger.com does not validate or confirm the veracity of the information or guarantee its authenticity or the compliance of the Project with applicable law in particular the Real Estate (Regulation and Development) Act, 2016 (“Act”). Read Disclaimer
The information and data published herein with respect to this Project are collected from publicly available sources. PropTiger.com does not validate or confirm the veracity of the information or guarantee its authenticity or the compliance of the Project with applicable law in particular the Real Estate (Regulation and Development) Act, 2016 (“Act”). Read Disclaimer