
16 Photos
2190 sq ft 3 BHK 3T Apartment in Clover Realty Olympus
Price on request
Project Location
Sopan Baug, Pune
Basic Details
Amenities8
Specifications
Property Specifications
- CompletedStatus
- Aug'10Possession Start Date
- 2190 sq ftSize
- 8Total Launched apartments
- ResaleAvailability
Clover Olympus is well constructed, ready to move in project, in one of the most desired residential location Sopan Baug, Pune. It offers 3 and 4 BHK apartments which have a carpet area of 2,190 - 4,025 sq. ft. The apartments are ready to move into and the apartments are available only through resale. There are a total number of 8 apartments. Several amenities are proposed for the community, including a gymnasium, rainwater harvesting, power back up, Internet connection, ample car parking space,...more
Approved for Home loans from following banks
- + 3 more banksshow less
Price & Floorplan
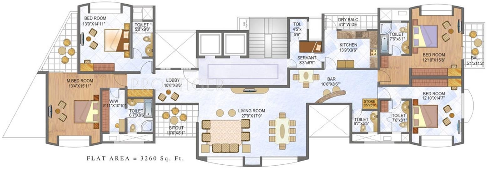
3BHK+3T (2,190 sq ft)
Price On Request

2D |
- 3 Bathrooms
- 1 Balcony
- 3 Bedrooms
Report Error
Gallery
Clover OlympusElevation
Clover OlympusFloor Plans
Clover OlympusNeighbourhood
Other properties in Clover Realty Olympus
- 3 BHK
- 4 BHK
Contact NRI Helpdesk on
Whatsapp(Chat Only)
Whatsapp(Chat Only)
+91-96939-69347
Contact Helpdesk on
Whatsapp(Chat Only)
Whatsapp(Chat Only)
+91-96939-69347
About Clover Realty

- 52
Years of Experience - 26
Total Projects - 2
Ongoing Projects - RERA ID
Clover Realty is a leading real estate company that is inspired to excel in a competitive real estate industry. Clover Realty has 34 years of experience under its belt and has successfully developed several landmark projects in Pune. The company has always delivered projects that are reflective of futuristic vision, immaculate planning and greater strength. The portfolio of property by Clover Realty encompasses luxury villas, townships, premium residences, commercial spaces, farmhouses and land ... read more
Similar Properties
- PT ASSISTDarode 2BHK+2Tby Darode JogNear Pingale Farms, South Main Road, Koregaon Park, PunePrice on request
- PT ASSISTAmar 3BHK+3Tby Amar Builders PuneNational Highway 9, Suryalok Nagari, Hadapsar, PunePrice on request
- PT ASSISTAmar 2BHK+2Tby Amar Builders PuneNational Highway 9, Suryalok Nagari, Hadapsar, PunePrice on request
- PT ASSISTPrasun 3BHK+3Tby Prasun HomesKalyani Nagar, PunePrice on request
- PT ASSISTPrasun 2BHK+2Tby Prasun HomesKalyani Nagar, PunePrice on request
Discuss about Clover Olympus
comment
Disclaimer
PropTiger.com is not marketing this real estate project (“Project”) and is not acting on behalf of the developer of this Project. The Project has been displayed for information purposes only. The information displayed here is not provided by the developer and hence shall not be construed as an offer for sale or an advertisement for sale by PropTiger.com or by the developer.
The information and data published herein with respect to this Project are collected from publicly available sources. PropTiger.com does not validate or confirm the veracity of the information or guarantee its authenticity or the compliance of the Project with applicable law in particular the Real Estate (Regulation and Development) Act, 2016 (“Act”). Read Disclaimer
The information and data published herein with respect to this Project are collected from publicly available sources. PropTiger.com does not validate or confirm the veracity of the information or guarantee its authenticity or the compliance of the Project with applicable law in particular the Real Estate (Regulation and Development) Act, 2016 (“Act”). Read Disclaimer