
24 Photos
PROJECT RERA ID : P52100001719, P52100007927, P52100027586, P52100027455, P52100053043
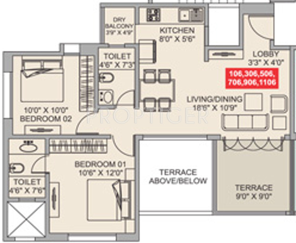
879 sq ft 2 BHK 2T Apartment in DR Gavhane Destinations Ostia
Price on request
Project Location
Moshi, Pune
Basic Details
Amenities28
Specifications
Property Specifications
- CompletedStatus
- May'17Possession Start Date
- 879 sq ftSize
- 329Total Launched apartments
- Feb'14Launch Date
- ResaleAvailability
Salient Features
- Spacious properties .
- River view, lush greenery
- The project offers apartment with perfect combination of contemporary architecture and features to provide comfortable living
- Swimming pool, rainwater harvesting
- Designed by a design studio, amit bhatt architect architects
- Amenities like ,swimming pool, power backup, gymnasium
Destinations Ostia project is registered in RERA under project as - Destination Ostia P52100001719, Destination Ostia Bldg A P52100007927.D R Gavhane Destinations has launched Ostia Pune, a premium residential project offering 1 BHK, 2 BHK and 3 BHK apartments to buyers that are priced between INR 21.4 and 45.9 lakhs on an average. The project consists of a total of 453 units while average home sizes range between 556 and 1193 sq. ft. Key amenities offered to residents at this project include an...more
Approved for Home loans from following banks
Payment Plans

Price & Floorplan
2BHK+2T (879 sq ft)
Price On Request

2D
- 2 Bathrooms
- 2 Bedrooms
Report Error
Gallery
DR Gavhane OstiaElevation
DR Gavhane OstiaFloor Plans
DR Gavhane OstiaNeighbourhood
Other properties in DR Gavhane Destinations Ostia
Contact NRI Helpdesk on
Whatsapp(Chat Only)
Whatsapp(Chat Only)
+91-96939-69347
Contact Helpdesk on
Whatsapp(Chat Only)
Whatsapp(Chat Only)
+91-96939-69347
About DR Gavhane Destinations

- 33
Years of Experience - 17
Total Projects - 6
Ongoing Projects - RERA ID
Similar Properties
- PT ASSISTAksha 2BHK+2T (890 sq ft)by Aksha GroupDaswani Rd, Alandi, Pimpri-ChinchwadPrice on request
- PT ASSISTRoyal 2BHK+2T (940 sq ft)by Royal LandmarksAlandi Road, MoshiPrice on request
- PT ASSISTYash 2BHK+2T (812 sq ft)by Yash Enterprises PuneMoshi,PunePrice on request
- PT ASSISTB Orbit 2BHK+2T (832 sq ft)by B Orbit GroupGat No.41,Moshi Chowk,Moshi ,Pimpri Chinchwad, PunePrice on request
- PT ASSISTShubhashree 2BHK+2T (931 sq ft)by Shubhashree DevelopersAlandiPrice on request
Discuss about DR Gavhane Ostia
comment
Disclaimer
PropTiger.com is not marketing this real estate project (“Project”) and is not acting on behalf of the developer of this Project. The Project has been displayed for information purposes only. The information displayed here is not provided by the developer and hence shall not be construed as an offer for sale or an advertisement for sale by PropTiger.com or by the developer.
The information and data published herein with respect to this Project are collected from publicly available sources. PropTiger.com does not validate or confirm the veracity of the information or guarantee its authenticity or the compliance of the Project with applicable law in particular the Real Estate (Regulation and Development) Act, 2016 (“Act”). Read Disclaimer
The information and data published herein with respect to this Project are collected from publicly available sources. PropTiger.com does not validate or confirm the veracity of the information or guarantee its authenticity or the compliance of the Project with applicable law in particular the Real Estate (Regulation and Development) Act, 2016 (“Act”). Read Disclaimer