
13 Photos
Alcon Sukhwani Rainforest
Price on request
Builder Price
1, 2 BHK
Apartment
570 - 960 sq ft
Builtup area
Project Location
Jambhul, Pune
Overview
- Mar'15Possession Start Date
- CompletedStatus
- 112Total Launched apartments
- May'12Launch Date
- ResaleAvailability
More about Alcon Sukhwani Rainforest
Jambhul region of Pune has many developing projects. One of them is the project of Alcon Sukhwani Rainforest which is in a ready to move in state and it is in for the development of spacious and comfy apartments. The region where this project is available is surrounded by restaurant, petrol pump, bank, park, office complex, metro station, higher education school, play school, hospital, train station, play school facilities and atm. the project also offers amenities like, play ground for children...read more
Approved for Home loans from following banks
- + 3 more banksshow less
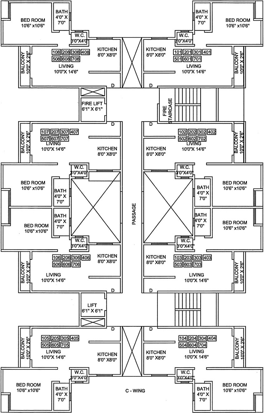
Alcon Sukhwani Rainforest Floor Plans
- 1 BHK
- 2 BHK
Floor Plan | Area | Builder Price |
---|---|---|
![]() | 570 sq ft (1BHK+1T) | - |
Report Error
Our Picks
- PriceConfigurationPossession
- Current ProjectAlcon Sukhwani Rainforestby Alcon Builders And PromotersJambhul, PuneData Not Available1,2 BHK Apartment570 - 960 sq ftMar '15
- RecommendedVillagio Iby Supreme UniversalSomatane, PuneData Not Available3 BHK Villa831 - 1,381 sq ftMar '25
- RecommendedAbhimaan Homesby Kohinoor Group PuneGahunje, Pune₹ 20.85 L - ₹ 35.45 L1,2 BHK Apartment327 - 556 sq ftNov '19
Alcon Sukhwani Rainforest Amenities
- Gymnasium
- Swimming Pool
- Children's play area
- Club House
- Party Hall
- Intercom
- 24x7 Security
- Table Tennis
Alcon Sukhwani Rainforest Specifications
Doors
Internal:
Elegant Door
Main:
Laminated Flush Door
Flooring
Balcony:
Ceramic Tiles
Kitchen:
Vitrified Tiles
Living/Dining:
Vitrified Tiles
Master Bedroom:
Vitrified Tiles
Other Bedroom:
Vitrified Tiles
Toilets:
Ceramic Tiles
Gallery
Alcon Sukhwani RainforestElevation
Alcon Sukhwani RainforestAmenities
Alcon Sukhwani RainforestFloor Plans
Alcon Sukhwani RainforestNeighbourhood
Contact NRI Helpdesk on
Whatsapp(Chat Only)
Whatsapp(Chat Only)
+91-96939-69347
Contact Helpdesk on
Whatsapp(Chat Only)
Whatsapp(Chat Only)
+91-96939-69347
About Alcon Builders And Promoters

- 45
Years of Experience - 27
Total Projects - 2
Ongoing Projects - RERA ID
An Overview Alcon Builders is a Pune based ISO certified real estate developer. Alcons aim is to create a collaborative community; stimulating professional partnerships. It caters to both residential as well as commercial sectors. The structures are well planned, meticulously constructed & well-appointed creations that are easy to run and maintain. It aims to provide quality services to the customers, and be the preferred destination for them. Unique Selling PointThe USP of Alcon is their cu... read more
Similar Projects
- PT ASSISTSupreme Villagio Iby Supreme UniversalSomatane, PunePrice on request
- PT ASSISTKohinoor Abhimaan Homesby Kohinoor Group PuneGahunje, Pune₹ 20.85 L - ₹ 35.45 L
- PT ASSISTMantra 24 West Phase 4by Mantra PropertiesGahunje, PunePrice on request
- PT ASSISTGodrej Park Greensby Godrej PropertiesMamurdi, Pune₹ 48.05 L - ₹ 59.09 L
- PT ASSISTLodha Belmondo Tower 32by Lodha GroupGahunje, Pune₹ 1.15 Cr
Discuss about Alcon Sukhwani Rainforest
comment
Disclaimer
PropTiger.com is not marketing this real estate project (“Project”) and is not acting on behalf of the developer of this Project. The Project has been displayed for information purposes only. The information displayed here is not provided by the developer and hence shall not be construed as an offer for sale or an advertisement for sale by PropTiger.com or by the developer.
The information and data published herein with respect to this Project are collected from publicly available sources. PropTiger.com does not validate or confirm the veracity of the information or guarantee its authenticity or the compliance of the Project with applicable law in particular the Real Estate (Regulation and Development) Act, 2016 (“Act”). Read Disclaimer
The information and data published herein with respect to this Project are collected from publicly available sources. PropTiger.com does not validate or confirm the veracity of the information or guarantee its authenticity or the compliance of the Project with applicable law in particular the Real Estate (Regulation and Development) Act, 2016 (“Act”). Read Disclaimer