
22 Photos
PROJECT RERA ID : P52100009910
Pragati Royal Serene Phase I
Price on request
Builder Price
2 BHK
Apartment
466 - 752 sq ft
Carpet Area
Project Location
Mahalunge, Pune
Overview
- Apr'22Possession Start Date
- Under ConstructionStatus
- 1.86 AcresTotal Area
- 140Total Launched apartments
- Sep'16Launch Date
- ResaleAvailability
More about Pragati Royal Serene Phase I
.
Approved for Home loans from following banks
- + 3 more banksshow less
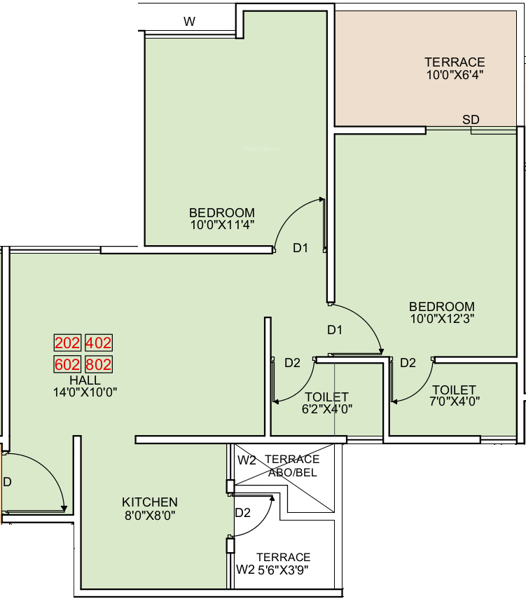
Pragati Royal Serene Phase I Floor Plans
- 2 BHK
Report Error
Our Picks
- PriceConfigurationPossession
- Current ProjectPragati Royal Serene Phase Iby Pragati GroupMahalunge, PuneData Not Available2 BHK Apartment466 - 752 sq ftApr '22
- RecommendedEarth 1 By VTP Luxe Phase 3by VTP RealtyMahalunge, Pune₹ 87.00 L - ₹ 2.41 Cr2,3,4 BHK Apartment673 - 1,766 sq ftApr '29
- RecommendedIconby Vistaar RealtyBalewadi, Pune₹ 87.00 L - ₹ 2.41 Cr1,2 BHK Apartment393 - 566 sq ftNov '20
Pragati Royal Serene Phase I Amenities
- Closed Car Parking
Gallery
Pragati Royal Serene Phase IElevation
Pragati Royal Serene Phase IAmenities
Pragati Royal Serene Phase IFloor Plans
Payment Plans

Contact NRI Helpdesk on
Whatsapp(Chat Only)
Whatsapp(Chat Only)
+91-96939-69347
Contact Helpdesk on
Whatsapp(Chat Only)
Whatsapp(Chat Only)
+91-96939-69347
About Pragati Group

- 7
Total Projects - 2
Ongoing Projects - RERA ID
Pragati Group is a well-known real estate company which has developed several landmarks till date. Pragati Group is a progressive company known for innovation, creativity and dynamism. The list of property by Pragati Group includes several high-quality residential projects in Pune. The group is known for striking proper balances between quality and costs. Unique Selling Point: The core values of the group include trust, reliability, integrity and transparency in all business dealings. The group... read more
Similar Projects
- PT ASSISTEarth 1 By VTP Luxe Phase 3by VTP RealtyMahalunge, Pune₹ 71.51 L - ₹ 1.88 Cr
- PT ASSISTVistaar Iconby Vistaar RealtyBalewadi, PunePrice on request
- PT ASSISTSaheel Baner Nxby Saheel PropertiesBaner, PunePrice on request
- PT ASSISTVTP Earth Oneby VTP RealtyMahalunge, Pune₹ 78.50 L - ₹ 2.18 Cr
- PT ASSISTGodrej River Royaleby Godrej PropertiesMahalunge, Pune₹ 2.37 Cr - ₹ 6.17 Cr
Discuss about Pragati Royal Serene Phase I
comment
Disclaimer
PropTiger.com is not marketing this real estate project (“Project”) and is not acting on behalf of the developer of this Project. The Project has been displayed for information purposes only. The information displayed here is not provided by the developer and hence shall not be construed as an offer for sale or an advertisement for sale by PropTiger.com or by the developer.
The information and data published herein with respect to this Project are collected from publicly available sources. PropTiger.com does not validate or confirm the veracity of the information or guarantee its authenticity or the compliance of the Project with applicable law in particular the Real Estate (Regulation and Development) Act, 2016 (“Act”). Read Disclaimer
The information and data published herein with respect to this Project are collected from publicly available sources. PropTiger.com does not validate or confirm the veracity of the information or guarantee its authenticity or the compliance of the Project with applicable law in particular the Real Estate (Regulation and Development) Act, 2016 (“Act”). Read Disclaimer